Вхід на сайт

Ел. пошта:
Пароль:

Реєстрація на сайті

Призвіще: Область:
Ім'я: Населений пункт:
    По батькові: Номер телефону:
    Ел. пошта: Компанія:
      Пароль: Посада:
      Повторіть пароль: Рік початку роботи:
      Фото:
      З правилами розміщення об'єктів погоджуюсь

      Забули пароль?

      Вкажіть ел. пошту — ми надішлемо Вам новий пароль для входу
      Ел. пошта:

      Проблема на сайті

      Закрити
      Ваш e-mail:
      (необов'язково)
      Розкажіть нам, що сталось

      ул. Генерала Духова — Продається будинок

      (г. Полтава, Киевский район)

      50000 $

      Загальна площа: 68 кв.м

      Площа ділянки: 10 сот

      Кімнат: 3

      К-ть поверхів: 1

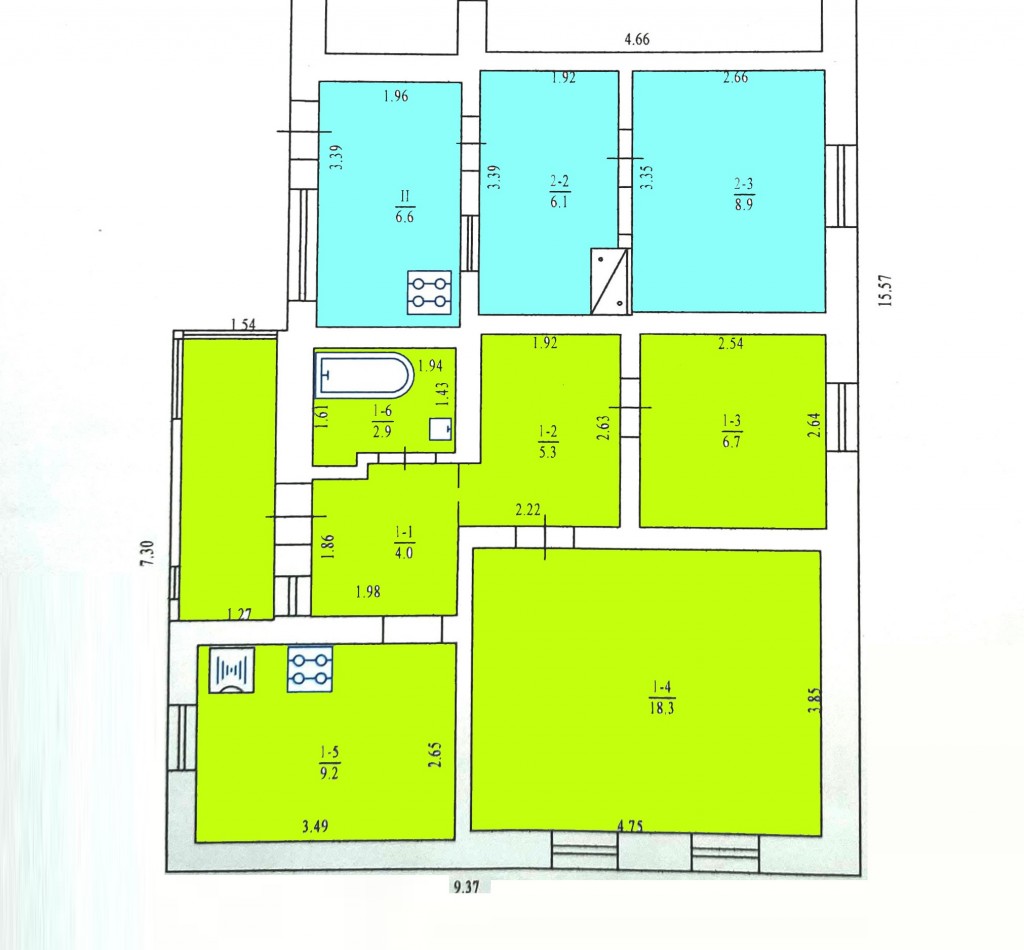
      Продаж двох частин із трьох частин будинку в центральній частині Полтави в районі 5 школи (р-н вул. Духова) площею 68 м2 зі зручностями

      Характеристика та опис:
      1) перша частина будинку загальною площею 46, 4м2 та складається:
      - жила кімната- 18, 3 м2
      - жила кімната- 6, 7 м2
      - кухня- 5, 3 м2
      - санвузол сумісний- 2, 9 м2
      - сіни- 4, 0 м2
      окремий вхід, веранда, кімнати окремі, всі зручності, опалення автономне (двоконтурний котел), 5-7 літній ремонт, м/п вікна, зовнішнє утеплення (мінвата, сайдинг)

      2) друга частина будинку загальною площею 21, 6м2 та складається:
      - жила кімната- 8, 9 м2
      - кухня- 6, 1 м2
      - сіни- 6, 6 м2
      окремий вхід, опалення пічне, без ремонту

      Опис домоволодіння:
      - площа земельної ділянки 1015м2 (10 соток) в загальному користуванні
      - в дворі є колонка централізованого водопостачання
      - є металевий гараж (з окремим виїздом на вулицю), огорода- металопрофіль, ворота вїзду в двір, є 2 сараї
      Комунікації:
      - газ;
      - електрика;
      - централізована вода;
      - септик
      Вартість двох частин будинку: $50 000
      -додатково сплачуються комісійні АН- 3%

      Надіслати скаргу

      Закрити
      Поскаржитися на об'єкт «ул. Генерала Духова (г. Полтава, Киевский район)»
      Ваш коментар:(Необов'язково)
      Ваша скарга буде надіслана ріелтору, що розмістив об'єкт, а також адміністрації сайту АФНУ.
      Ваше ім'я:
      (Обов'язково)
      Ваш e-mail для відповіді:
      (Обов'язково)

      Коментарі