без комісії
Пр. Поштовий — Здається торгівельний майданчик
(г. Кривой Рог, Центрально-Городской район)
250 грн. за кв.м.
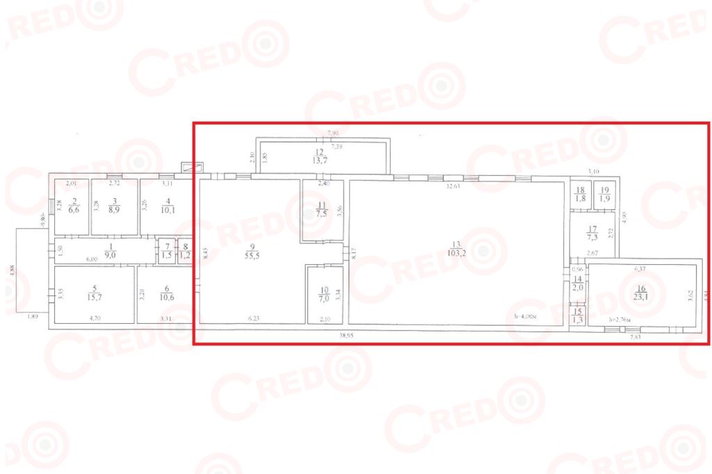
Загальна площа: 224 кв.м
Поверх: 1
К-ть поверхів: 1
Оренда приміщення, р-н Центрально Міський, пр. Поштовий
Приміщення знахдиться в центрі головної вулиці міста, напроти Театру Т.Шевченка. Окремо розташована будівля підійде під виробництво, фітнес, дитячий центр, колл центр та інше.
Технічні характеристики: - загальна площа 224.3кв.м.
Планування об’єкту: Один торговий зал, центральний вхід з площі та загрузочний вхід зі сторони двору.
Логістична розв’язка: проспект Поштовий – це культурний та діловий центр міста, популярне місце для відпочинку городян.
Оренда 250грн/кв.м. + коммун. платежі.
За будь-якими питаннями за цією або схожими пропозиціями звертайтесь за номером телефону, де вам відповість наш ріелтор Наталія - 0676961651 Підписуйтесь на наш Instagram та слідкуйте за оновленнями - @ancredokr З повагою, команда Credo!