Вхід на сайт

Ел. пошта:
Пароль:

Реєстрація на сайті

Призвіще: Область:
Ім'я: Населений пункт:
    По батькові: Номер телефону:
    Ел. пошта: Компанія:
      Пароль: Посада:
      Повторіть пароль: Рік початку роботи:
      Фото:
      З правилами розміщення об'єктів погоджуюсь

      Забули пароль?

      Вкажіть ел. пошту — ми надішлемо Вам новий пароль для входу
      Ел. пошта:

      Проблема на сайті

      Закрити
      Ваш e-mail:
      (необов'язково)
      Розкажіть нам, що сталось

      без комісії пр. Победы, 67 — Продається офіс

      (г. Киев, Святошинский район)

      299570 $

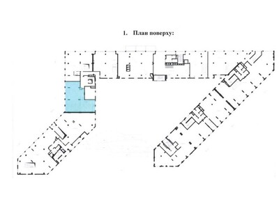
      Загальна площа: 175 кв.м

      Кімнат: 7

      Поверх: 2

      К-ть поверхів: 9

      ПРОДАМ нежитлове приміщення загал.площею – 175,7 м2. 2-ий поверх 9-ти поверхового житлового будинку. 1 та 2 поверхи в будинку – комерційна нерухомість. Будинок здан в експлуатацію в 2021р. Заселен. Має декілька входів: Загальний та вхід з боку Патіо, внутрішній двір ЖК Сан-Франциско.
      Приміщення після будівельників. Приміщення кабінетно – коридорного планування: 7 кабінетів, 2 санвузли. Підійде для офісу.
      Поруч: Мегамаркет, Макдональдс, кафе, ресторани.
      Вартість нежитлового приміщення = 299.570 $
      З усіх питань, прохання звертатися: 096.050.66.50 / 093.229.00.65

      Надіслати скаргу

      Закрити
      Поскаржитися на об'єкт «пр. Победы, 67 (г. Киев, Святошинский район)»
      Ваш коментар:(Необов'язково)
      Ваша скарга буде надіслана ріелтору, що розмістив об'єкт, а також адміністрації сайту АФНУ.
      Ваше ім'я:
      (Обов'язково)
      Ваш e-mail для відповіді:
      (Обов'язково)

      Коментарі