Вхід на сайт

Ел. пошта:
Пароль:

Реєстрація на сайті

Призвіще: Область:
Ім'я: Населений пункт:
    По батькові: Номер телефону:
    Ел. пошта: Компанія:
      Пароль: Посада:
      Повторіть пароль: Рік початку роботи:
      Фото:
      З правилами розміщення об'єктів погоджуюсь

      Забули пароль?

      Вкажіть ел. пошту — ми надішлемо Вам новий пароль для входу
      Ел. пошта:

      Проблема на сайті

      Закрити
      Ваш e-mail:
      (необов'язково)
      Розкажіть нам, що сталось

      без комісії Собоності — Продається торгівельний майданчик

      (г. Кривой Рог, Дзержинский район)

      450 $ за кв.м.

      Загальна площа: 274 кв.м

      Поверх: 1

      К-ть поверхів: 4

      Супер ціна! 450$ за 1кв.м. Соцмісто, вул. Соборності, зупинка "Ринок"
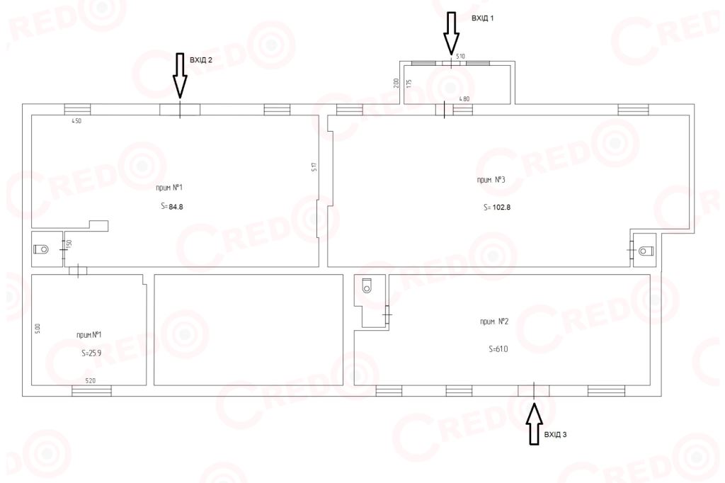
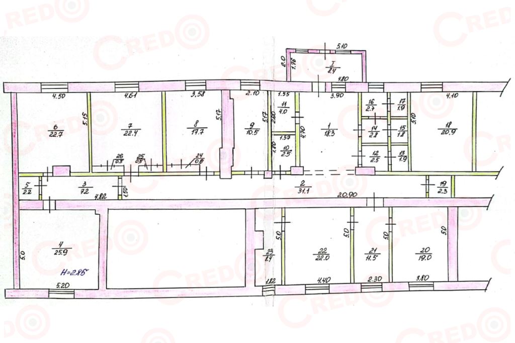
      Загальна площа приміщення 274,5кв.м.

      Раніше приміщення використовувалось як офіс підприємства.
      Потім, як фітнес центр.
      Також під оренду кабінетів.

      Планування:
      - приймальня;
      - 10 кабінетів;
      - 4 підсобних приміщень;
      - 2 окремі с/вузли.

      Приміщення має зручне планування, стіни дуже легко демонтувати, що дасть можливість отримати великі зали і зробити три окремих входи (план додаємо).

      Комунікації: опалення відключене, електроенергія збільшується на 30кВт, водопостачання.

      Для тих хто в пошуках:
      - Великого офісу
      - Медичного центру
      - Салону краси
      - Фітнес клубу
      - Торгівельного приміщення під спеціалізований магазин та ін.

      Зручне розташування з гарною транспортною розвязкою в усі напрямки міста.

      Надіслати скаргу

      Закрити
      Поскаржитися на об'єкт «Собоності (г. Кривой Рог, Дзержинский район)»
      Ваш коментар:(Необов'язково)
      Ваша скарга буде надіслана ріелтору, що розмістив об'єкт, а також адміністрації сайту АФНУ.
      Ваше ім'я:
      (Обов'язково)
      Ваш e-mail для відповіді:
      (Обов'язково)

      Вам также могут подойти

      пр. Гагарина (г. Кривой Рог, Дзержинский район) - Здається торгівельний майданчик, 400 грн. за кв.м. - АФНУ

      Оновлено: 16 грудня 2025

      Розміщено: 6 листопада 2025

      Здається торгівельний майданчик

      площа 216, поверх 1/4

      г. Кривой Рог, пр. Гагарина

      400 грн. за кв.м.

      Літвинова Ірина Вікторівна

      Довгострокова оренда приміщення, 96 Квартал
      Металургійний район, проспект Університетський

      Технічні характеристики:
      - Приміщення вбудовано в 1 поверх 3 поверхового житлового будинку.
      - Загальна площа 287,4кв.м., з них:
      - 1 поверх…

      Детальніше

      пр. Гагаріна (г. Кривой Рог, Саксаганский район) - Здається торгівельний майданчик, 400 грн. за кв.м. - АФНУ

      Оновлено: 24 грудня 2025

      Розміщено: 14 травня 2025

      Здається торгівельний майданчик

      площа 103, поверх 1/4

      г. Кривой Рог, пр. Гагаріна

      400 грн. за кв.м.

      Літвинова Ірина Вікторівна

      Пр. Університетський, 3 (Гагаріна)
      Саксаганський район
      - загальна площа-103 кв.м
      - торгівельний зал-73,4 кв.м
      - висота стелі - Н= 3,20 м

      Комунікації:
      - центральне електропостачання 12 кВт; 380 Вт
      -…

      Детальніше

      ул. Електрозаводська (г. Кривой Рог, Жовтневый район) - Здається торгівельний майданчик, 500 грн. за кв.м. - АФНУ

      Оновлено: 21 січня

      Розміщено: 15 травня 2025

      Здається торгівельний майданчик

      площа 2106, поверх -/3

      г. Кривой Рог, ул. Електрозаводська

      500 грн. за кв.м.

      Літвинова Ірина Вікторівна

      Оренда торгівельних площ в окремій будівлі на "Зарічному".

      - Покровський район
      - вул. Електрозаводська, 3а
      - розташована будівля на перехресті вулиць 5-й Зарічний; вул.Електрозаводська та вул.Десантна

      Про об’єкт:
      - 3-х…

      Детальніше

      Коментарі