Вхід на сайт

Ел. пошта:
Пароль:

Реєстрація на сайті

Призвіще: Область:
Ім'я: Населений пункт:
    По батькові: Номер телефону:
    Ел. пошта: Компанія:
      Пароль: Посада:
      Повторіть пароль: Рік початку роботи:
      Фото:
      З правилами розміщення об'єктів погоджуюсь

      Забули пароль?

      Вкажіть ел. пошту — ми надішлемо Вам новий пароль для входу
      Ел. пошта:

      Проблема на сайті

      Закрити
      Ваш e-mail:
      (необов'язково)
      Розкажіть нам, що сталось

      ул. Зелена, 25 — Продається квартира в новобудові

      (г. Белая Церковь, ДНС)

      100000 $

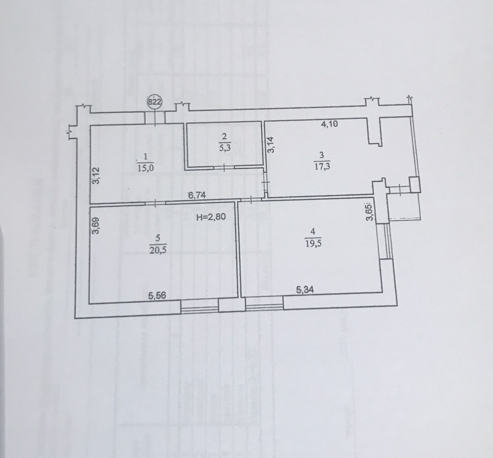
      Загальна площа: 78.1 кв.м

      Жила площа: 40 кв.м

      Площа кухні: 17.3 кв.м

      Кімнат: 2

      Поверх: 8

      К-ть поверхів: 10

      Продам
      ДНС ЖК «Зелений»
      2х кімнатна квартира на 8му поверсі, будинок цегляний
      Автономне газове опалення
      Загальна площа 78,1м2; житлова 40,0м2; кухня 17,3м2; кімнати 19,5м2 та 20,5м2; коридор 15м2
      Якісний ремонт: ламінат та плитка на підлозі; підігрів підлоги в ванній та на кухні. Кахлі Італійські, сучасного зразка. Розведено електрику; освітлення зоноване. Вікна та балкон енергозберігаючі; також є затишний «Французький балкончик».
      Будинок закритого типу із власною парковкою. Поруч школа, садочок; річка з чудовою набережною, парк «Олександрія».
      Вся інфраструктура в кроковій досяжності.
      Ціна 100000$

      За додатковою інформацією звертайтесь за телефоном 0970970911 АН Власник ексклюзивний представник продавця!

      Касьян Наталія

      Касьян Наталія Іванівна

      Директор (АН "ВЛАСНИК") , Голова ІТ комітету Білоцерківського відділенн до 2023 (Ассоциация специалистов по недвижимости (риэлторов) Украины) , Модератор Бідоцерківського відділення до 2023 (Ассоциация специалистов по недвижимости (риэлторов) Украины)

      +380 (97) 097-09... Показати номер телефона +380 (97) 097-09-11, +380 (96) 397-55-56, +380 (97) 761-10-66

      Поскаржитися на об'єкт

      Надіслати скаргу

      Закрити
      Поскаржитися на об'єкт «ул. Зелена, 25 (г. Белая Церковь, ДНС)»
      Ваш коментар:(Необов'язково)
      Ваша скарга буде надіслана ріелтору, що розмістив об'єкт, а також адміністрації сайту АФНУ.
      Ваше ім'я:
      (Обов'язково)
      Ваш e-mail для відповіді:
      (Обов'язково)

      Вам также могут подойти

      ул. Піщана (г. Белая Церковь) - Продається квартира, 85000 $ - АФНУ

      Оновлено: 30 січня

      Розміщено: 30 січня

      Продається квартира

      3 кімн., площа 70/-/8, поверх 2/9

      г. Белая Церковь, ул. Піщана

      85000 $

      Касьян Наталія Іванівна

      Директор (АН "ВЛАСНИК") , Голова ІТ комітету Білоцерківського відділенн до 2023 (Ассоциация специалистов по недвижимости (риэлторов) Украины) , Модератор Бідоцерківського відділення до 2023 (Ассоциация специалистов по недвижимости (риэлторов) Украины)

      М-в Піщаний
      Продаж 3-х кімнатної квартири з гаражем
      АВТОНОМНЕ ГАЗОВЕ ОПАЛЕННЯ
      Будинок цегляний 2005 року побудови
      Зовнішнє утеплення
      Загальна площа 70м2; кухня 8,5 м2
      Кімнати та сан вузол окремо, квадратний…

      Детальніше

      ул. Піщана (г. Белая Церковь) - Продається квартира, 85000 $ - АФНУ

      Оновлено: 30 січня

      Розміщено: 30 січня

      Продається квартира

      3 кімн., площа 70/-/8, поверх 2/9

      г. Белая Церковь, ул. Піщана

      85000 $

      Касьян Наталія Іванівна

      Директор (АН "ВЛАСНИК") , Голова ІТ комітету Білоцерківського відділенн до 2023 (Ассоциация специалистов по недвижимости (риэлторов) Украины) , Модератор Бідоцерківського відділення до 2023 (Ассоциация специалистов по недвижимости (риэлторов) Украины)

      М-в Піщаний
      Продаж 3-х кімнатної квартири з гаражем
      АВТОНОМНЕ ГАЗОВЕ ОПАЛЕННЯ
      Будинок цегляний 2005 року побудови
      Зовнішнє утеплення
      Загальна площа 70м2; кухня 8,5 м2
      Кімнати та сан вузол окремо, квадратний…

      Детальніше

      Коментарі