Вхід на сайт

Ел. пошта:
Пароль:

Реєстрація на сайті

Призвіще: Область:
Ім'я: Населений пункт:
    По батькові: Номер телефону:
    Ел. пошта: Компанія:
      Пароль: Посада:
      Повторіть пароль: Рік початку роботи:
      Фото:
      З правилами розміщення об'єктів погоджуюсь

      Забули пароль?

      Вкажіть ел. пошту — ми надішлемо Вам новий пароль для входу
      Ел. пошта:

      Проблема на сайті

      Закрити
      Ваш e-mail:
      (необов'язково)
      Розкажіть нам, що сталось

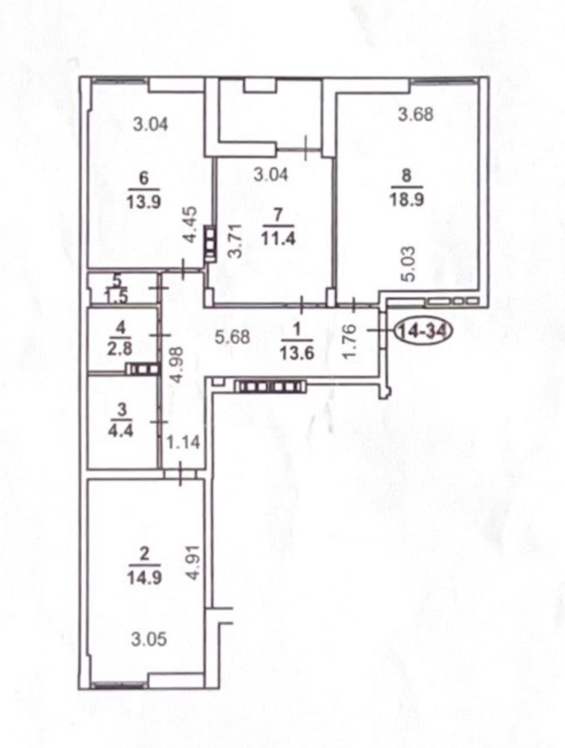
      без комісії ул. Регенераторная, 4 — Продається квартира

      (г. Киев, Днепровский район)

      175000 $

      Загальна площа: 83.4 кв.м

      Жила площа: 47.7 кв.м

      Площа кухні: 32.3 кв.м

      Кімнат: 3

      Поверх: 7

      К-ть поверхів: 8

      Без комісії! Продається шикарна ексклюзива 3 -кімнатна квартира в ЖК Комфорт Таун! вул. Ренгенераторна 4, корус 14. 83.4 м2. Розташова на 7 поверсі. В квартирі виконаний дизайнерський ремонт з використанням сучасних матеріалів провідних світових брендів. Все помешкання укомплектова вишуканими меблями та сучасною побутовою технікою. Велика кухня столова поєднана з просторною вітальнею ( 32.3 м2) Окрема спальня та дитяча кімната, роздільний санвузол з ваною кімнатою. Також є окрема гардеробна-пральня. В кожній кімнаті є кондиціонер. В квартирі є всі лячильники, включаючи і на тепло. Будинок знаходиться в закритому охороняємому комплексі з концепцією місто в місті. Поряд дуже розвинена інфрастуктура: кав'ярні, банки, аптеки, пошта, магазини, салони, дитячі садочки і школи, спортивний клуб Спорт Лайф і великий супермаркет Новус. Біля будинку безліч дитячих та спортивних майданчиків. Поряд з будинком розташований наземний паркінг та є гостьові паркомісця. Транспортна розв'язка дозволить виїхати в різні напрямки міста. Квартира захоплює з першого погляду. Приходьте на перегляд і вам точно сподобається!

      Надіслати скаргу

      Закрити
      Поскаржитися на об'єкт «ул. Регенераторная, 4 (г. Киев, Днепровский район)»
      Ваш коментар:(Необов'язково)
      Ваша скарга буде надіслана ріелтору, що розмістив об'єкт, а також адміністрації сайту АФНУ.
      Ваше ім'я:
      (Обов'язково)
      Ваш e-mail для відповіді:
      (Обов'язково)

      Коментарі