Клочківська вул., 117 — Продається квартира в новобудові
(г. Харьков, Дзержинский район)
115000 $
Загальна площа: 170 кв.м
Жила площа: 66 кв.м
Площа кухні: 30 кв.м
Кімнат: 4
Поверх: 16
К-ть поверхів: 17
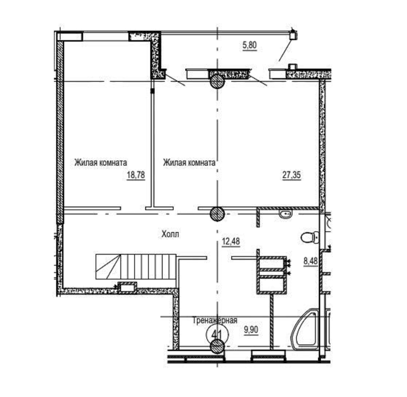
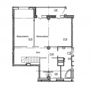
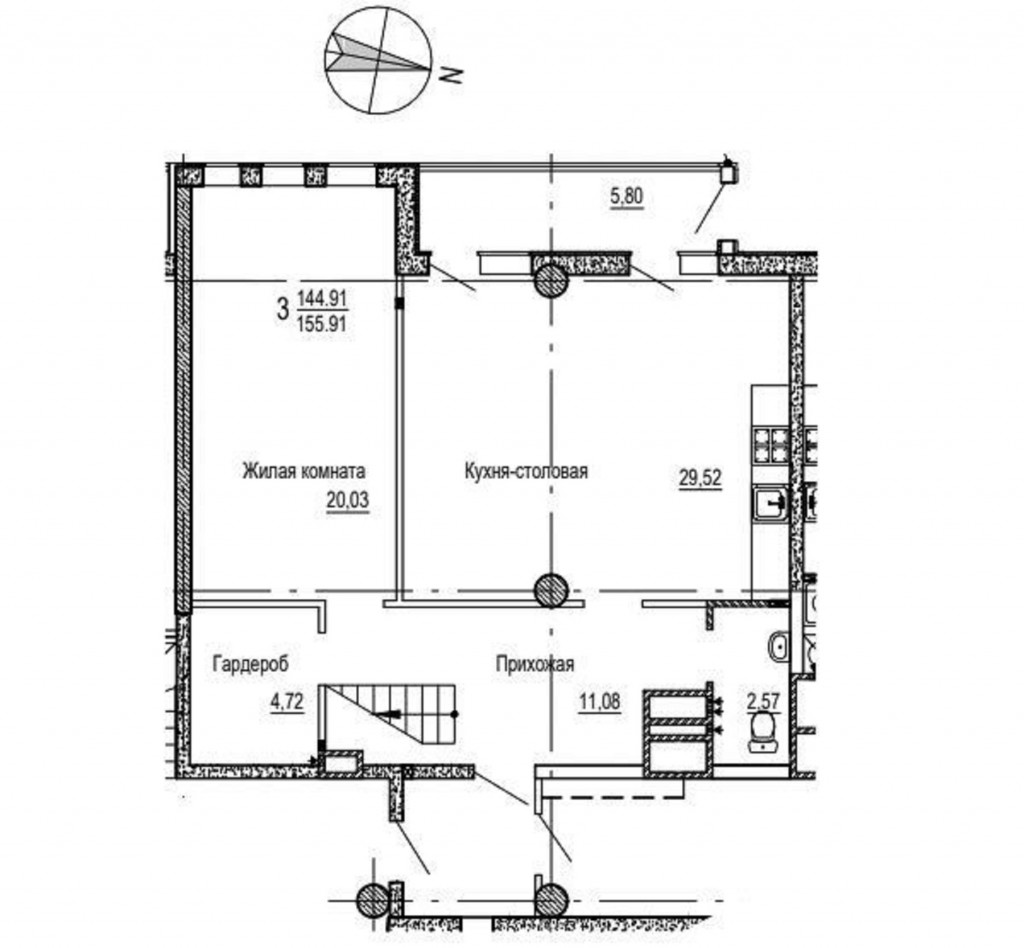
Продам 4-кімнатну квартиру у житловому комплексі бізнес-класу "Павлівський квартал", вул. Клочківська, 117 біля метро Наукова. Код об'єкта SF-2-235-636 Житловий комплекс бізнес-класу розташований у районі, наближеному до центру. Біля будинку зупинки транспорту, через дорогу – супермаркет Восторг. Поруч метро, супермаркети Клас, Зріст, АТБ, будівельний супермаркет Будмен, фітнес-клуб YOD, школи, дитсадки. Забудовник "Житлобуд-2" Секція 4, здана. Продаж по переуступці. 16-й та 17-й поверхи 17-поверхового монолітно-каркасного будинку. Стіни: газобетон, мінераловатний утеплювач, штукатурка. Загальна площа 170 кв.м., житлова площа 66 кв.м. 1-й рівень (16-й поверх): кухня-студія - 30 кв.м, спальня 20 кв.м, санвузол 3 кв.м, вбиральня - 5 кв.м, передпокій - 11 кв.м, лоджія - 6 кв. .м. 2-й рівень (17-й поверх): дві спальні – 19 кв.м та 27 кв.м, санвузол 9 кв.м, тренажерна – 10 кв.м, хол – 12 кв.м, лоджія – 6 кв.м . Квартира у будiвельному станi. У під'їзді просторий хол, домофон, цілодобовий консьєрж-сервіс. Закритий двір, відеоспостереження, підземний дворівневий паркінг, наземне паркування, зони відпочинку, дитячі та спортивні майданчики. Вартість $115 тис + послуги АН
Оновлено: 11 липня
Розміщено: 27 березня 2023
Вам также могут подойти
Оновлено: 25 серпня
Розміщено: 21 лютого 2022
3 кімн., площа 138/61/20, поверх 19/20
г. Харьков, ул. Клочковская, 117
105000 $
Авраменко Елена Александровна
(Агенція нерухомості AvramenKo )
, (Агенція нерухомості AvramenKo )
Продам 3-кімнатну квартиру з терасою у житловому комплексі бізнес-класу "Павлівський квартал", вул. Клочківська, 117 біля метро Наукова. Код об'єкта SF-2-270-152 Житловий комплекс бізнес-класу розташований у районі, наближеному до центру. Біля…
Детальніше
Оновлено: 25 серпня
Розміщено: 21 лютого 2022
3 кімн., площа 138/61/20, поверх 19/20
г. Харьков, ул. Клочковская, 117
105000 $
Авраменко Елена Александровна
(Агенція нерухомості AvramenKo )
, (Агенція нерухомості AvramenKo )
Продам 3-кімнатну квартиру з терасою у житловому комплексі бізнес-класу "Павлівський квартал", вул. Клочківська, 117 біля метро Наукова. Код об'єкта SF-2-270-152 Житловий комплекс бізнес-класу розташований у районі, наближеному до центру. Біля…
Детальніше
Оновлено: 25 серпня
Розміщено: 21 лютого 2022
3 кімн., площа 138/61/20, поверх 19/20
г. Харьков, ул. Клочковская, 117
105000 $
Авраменко Елена Александровна
(Агенція нерухомості AvramenKo )
, (Агенція нерухомості AvramenKo )
Продам 3-кімнатну квартиру з терасою у житловому комплексі бізнес-класу "Павлівський квартал", вул. Клочківська, 117 біля метро Наукова. Код об'єкта SF-2-270-152 Житловий комплекс бізнес-класу розташований у районі, наближеному до центру. Біля…
Детальніше
Коментарі