|
|
без комісії
Полтавський Шлях вулиця, 184 — Продається квартира в новобудові
(г. Харьков, Ленинский район)
31000 $
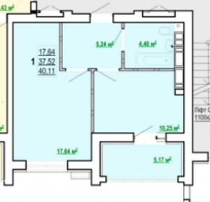
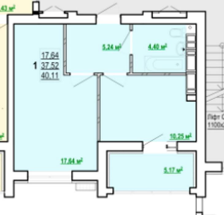
Загальна площа: 40 кв.м
Жила площа: 17 кв.м
Площа кухні: 10 кв.м
Кімнат: 1
Поверх: 7
К-ть поверхів: 9
Без комісії! Продам 1-квартиру в ЖК Казка (Сказка), Полтавський шлях. Будинок 8 секція 2. Будинок зданий в грудні 2021 року.
До ст метро Холодна гора 15 хв пішки.
Код об'єкта SF-2-178-019
Комплекс розташований біля станції метро Холодна гора. Забудовник Житлобуд-1.
Поруч вся необхідна інфраструктура: метро, супермаркети Клас та Рост, ринок Казка, школи, дитячі садки, зупинка громадського транспорту.
Забудовник Житлобуд-1.
Будинок 8 секція 2. Здан в грудні 2021р. Переуступка.
7-й поверх 9-ти поверхового будинку.
Загальна площа: 40,11 кв.м, окрема кімната - 17,6 кв.м, кухня – 10,25 кв.м із лоджією 5,17 кв.м. Квартира у будівельному стані.
Багаторівневий паркінг, гостьова парковка.
Відкритий двір, дитячий майданчик, в одному з будинків комплексу буде розміщено дитячий садок.
Вартість - $31 тис.
|
Оновлено: 11 липня 2025
Розміщено: 20 лютого 2023
|
|
Коментарі
|