Вхід на сайт

Ел. пошта:
Пароль:

Реєстрація на сайті

Призвіще: Область:
Ім'я: Населений пункт:
    По батькові: Номер телефону:
    Ел. пошта: Компанія:
      Пароль: Посада:
      Повторіть пароль: Рік початку роботи:
      Фото:
      З правилами розміщення об'єктів погоджуюсь

      Забули пароль?

      Вкажіть ел. пошту — ми надішлемо Вам новий пароль для входу
      Ел. пошта:

      Проблема на сайті

      Закрити
      Ваш e-mail:
      (необов'язково)
      Розкажіть нам, що сталось

      без комісії ул. Булгакова, 12 — Продається квартира

      (г. Киев, Святошинский район)

      72000 $

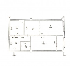
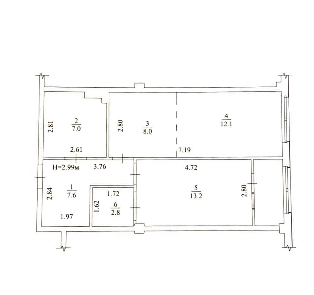
      Загальна площа: 55 кв.м

      Жила площа: 26 кв.м

      Площа кухні: 8 кв.м

      Кімнат: 2

      Поверх: 3

      К-ть поверхів: 5

      Продається 2-кімнатна квартира по вул. Булгакова, 12. На третьому поверсі п’яти поверхового будинку 2015 року забудови. Загальна площа 55 кв.м., житлова 26 кв.м.
      Простора кухня-вітальня, окрема спальня з гардеробною, балкон. Міські комунікаціі: вода, каналізація, електрика. Індивідуальне електричне опалення, підігрів підлоги в санвузлі.
      У дворі є місця для паркування машин.
      Квартира після ремонту - ніхто не проживав.
      Розвинена нфраструктура: школи, садки, супермаркети. Поруч зупинка міського транспорту, швидкісний трамвай, до метро Шулявська, Вокзальна - 20 хвилин.
      72000$, без %
      0965943044 Виктория

      Надіслати скаргу

      Закрити
      Поскаржитися на об'єкт «ул. Булгакова, 12 (г. Киев, Святошинский район)»
      Ваш коментар:(Необов'язково)
      Ваша скарга буде надіслана ріелтору, що розмістив об'єкт, а також адміністрації сайту АФНУ.
      Ваше ім'я:
      (Обов'язково)
      Ваш e-mail для відповіді:
      (Обов'язково)

      Вам также могут подойти

      Харківське шосе, 210 (г. Киев, Дарницкий район) - Продається квартира, 60500 $ - АФНУ

      Оновлено: 25 лютого

      Розміщено: 16 липня 2025

      Продається квартира

      1 кімн., площа 52/17/15, поверх 24/28

      г. Киев, Харківське шосе, 210

      60500 $ без комісії

      Яковенко Виктория Владимировна

      руководитель отдела продаж (VALION Київ, Харків, Одеса, Міколаїв, Львів, Івано-Франківськ, Ужгород, Полтава, Бориспіль, Ірпінь, Вишгород)

      Продаж 1 кімнатної квартири в Києві, ЖК Olympic Park
      Загальна площа - 52,67 м2, кухня-вітальня 15,54 м2.
      Є варіанти перепланування квартири.
      Стан - після будівельників.

      Квартира розташована на видовому 24…

      Детальніше

      ул. Клавдиевская, 40є (г. Киев, Святошинский район) - Продається квартира, 67000 $ - АФНУ

      Оновлено: 23 лютого

      Розміщено: 16 серпня 2024

      Продається квартира

      1 кімн., площа 47/30/15, поверх 23/25

      г. Киев, ул. Клавдиевская, 40є

      67000 $ без комісії

      Сенатосенко Олена Вікторівна

      ріелтор (VALION Київ, Харків, Одеса, Міколаїв, Львів, Івано-Франківськ, Ужгород, Полтава, Бориспіль, Ірпінь, Вишгород)

      Продам:
      без комісії,
      1-кім. квартиру,
      Святошинський район,
      ЖК "Грюнвальд",
      вул. Клавдіївська, 40є,
      поверх 23 з 25,
      загальна площа - 47 кв.м.

      Квартира з функціональним плануванням: окрема спальня з гардеробною, кухня…

      Детальніше

      Харківське шосе, 210 (г. Киев, Дарницкий район) - Продається квартира, 60500 $ - АФНУ

      Оновлено: 25 лютого

      Розміщено: 16 липня 2025

      Продається квартира

      1 кімн., площа 52/17/15, поверх 24/28

      г. Киев, Харківське шосе, 210

      60500 $ без комісії

      Яковенко Виктория Владимировна

      руководитель отдела продаж (VALION Київ, Харків, Одеса, Міколаїв, Львів, Івано-Франківськ, Ужгород, Полтава, Бориспіль, Ірпінь, Вишгород)

      Продаж 1 кімнатної квартири в Києві, ЖК Olympic Park
      Загальна площа - 52,67 м2, кухня-вітальня 15,54 м2.
      Є варіанти перепланування квартири.
      Стан - після будівельників.

      Квартира розташована на видовому 24…

      Детальніше

      Коментарі