Вхід на сайт

Ел. пошта:
Пароль:

Реєстрація на сайті

Призвіще: Область:
Ім'я: Населений пункт:
    По батькові: Номер телефону:
    Ел. пошта: Компанія:
      Пароль: Посада:
      Повторіть пароль: Рік початку роботи:
      Фото:
      З правилами розміщення об'єктів погоджуюсь

      Забули пароль?

      Вкажіть ел. пошту — ми надішлемо Вам новий пароль для входу
      Ел. пошта:

      Проблема на сайті

      Закрити
      Ваш e-mail:
      (необов'язково)
      Розкажіть нам, що сталось

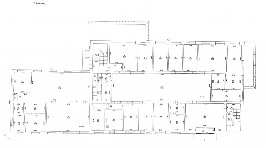
      ул. Шевченка — Продається офіс

      (с. Терешки, Полтавский район)

      4000000 грн.

      Загальна площа: 1199.3 кв.м

      Кімнат: 20

      К-ть поверхів: 2

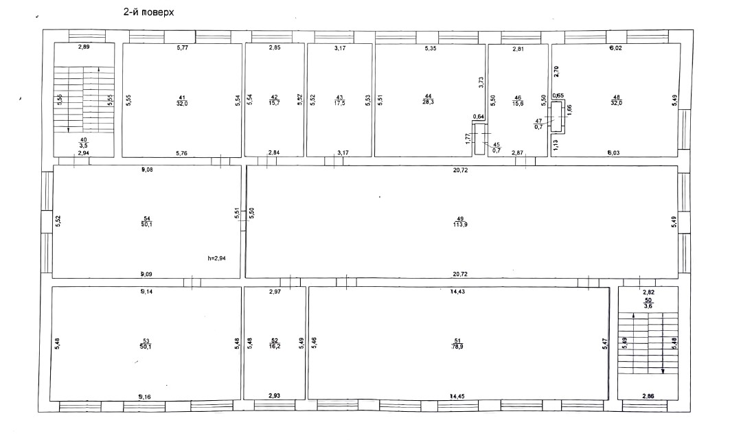
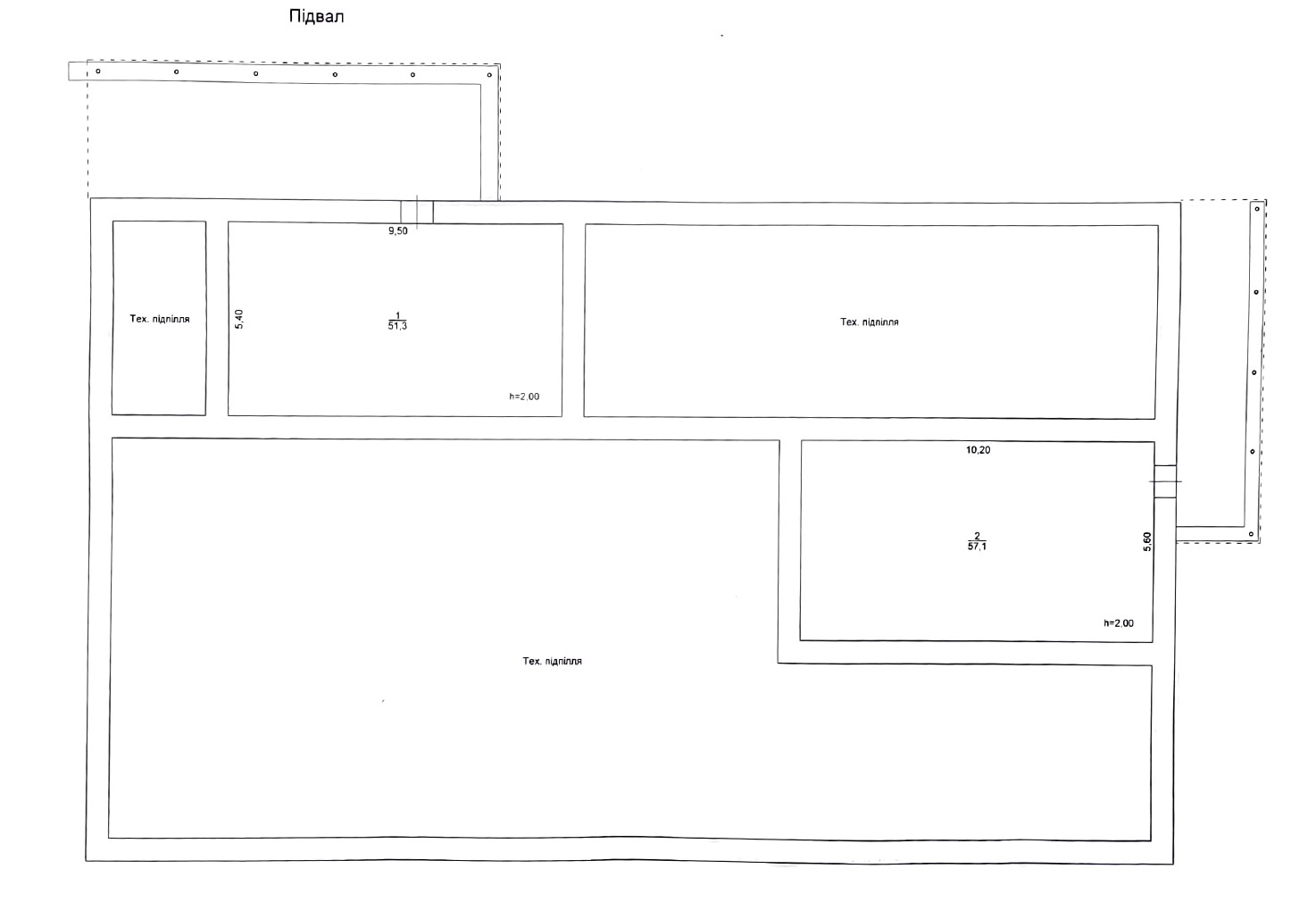
      Продаж адміністративної будівлі загальною площею 1199,3 м2, що знаходиться на земельній ділянці 0,5191 га за адресою Полтавська область, Полтавський район, село Терешки
      Характеристики споруди:
      Двоповерхова будівля з підвальнім приміщенням загальною площею 1199,3 м2 + прохідна 11,6 м2 в цілому складається складається:
      - 1 поверх- 632,1 м2;
      - 2 поверх- 458,8 м2;
      - підвальне приміщення- 108, м2
      Комунікації:
      - газ;
      - електроенергія;
      - централізоване водопостачання та водовідведення

      Початкова вартість: 4 000 000 грн

      Надіслати скаргу

      Закрити
      Поскаржитися на об'єкт «ул. Шевченка (с. Терешки, Полтавский район)»
      Ваш коментар:(Необов'язково)
      Ваша скарга буде надіслана ріелтору, що розмістив об'єкт, а також адміністрації сайту АФНУ.
      Ваше ім'я:
      (Обов'язково)
      Ваш e-mail для відповіді:
      (Обов'язково)

      Коментарі