Вхід на сайт

Ел. пошта:
Пароль:

Реєстрація на сайті

Призвіще: Область:
Ім'я: Населений пункт:
    По батькові: Номер телефону:
    Ел. пошта: Компанія:
      Пароль: Посада:
      Повторіть пароль: Рік початку роботи:
      Фото:
      З правилами розміщення об'єктів погоджуюсь

      Забули пароль?

      Вкажіть ел. пошту — ми надішлемо Вам новий пароль для входу
      Ел. пошта:

      Проблема на сайті

      Закрити
      Ваш e-mail:
      (необов'язково)
      Розкажіть нам, що сталось

      без комісії ул. Артема, 26 — Здається торгівельний майданчик

      (г. Полтава, Киевский район)

      9000 грн.

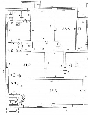
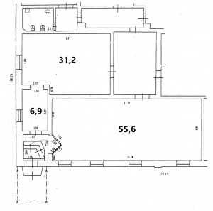
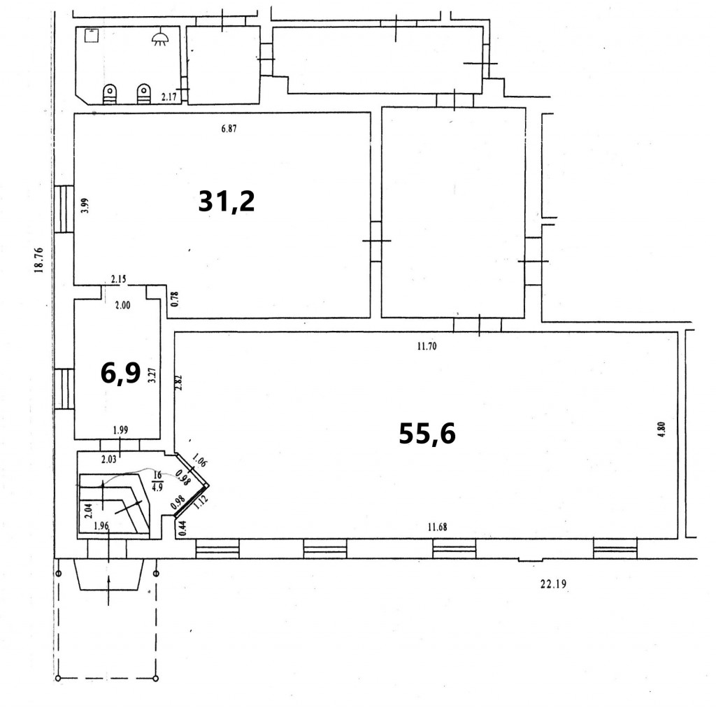
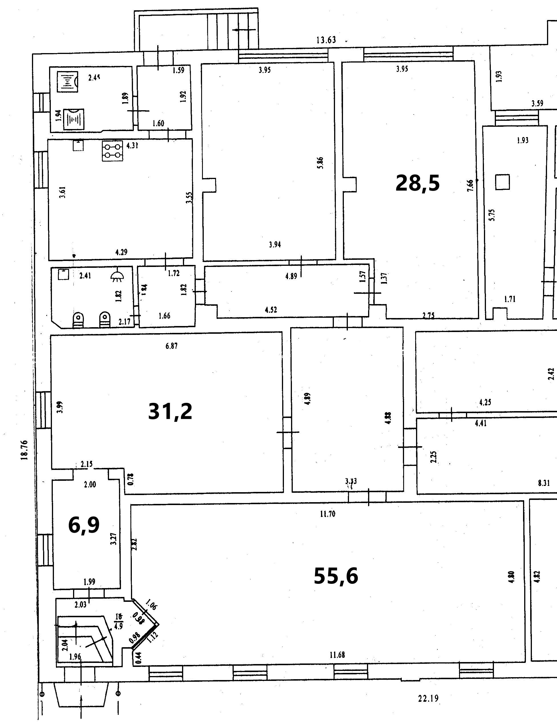
      Загальна площа: 98.6 кв.м

      Поверх: 1

      К-ть поверхів: 1

      Оренда салону-магазину по вулиці Симона Петлюри, 26 (стара назва- вул. Артема)
      загальною площею 98,6 м2 (без кімнати/складу) та 127,1 м2 (з кімнатою/складом)

      Характеристика приміщень:
      - виставочно-торгівельний зал- 55,6 м2;
      - ресепшн/офіс- 6,9 м2;
      - офіс- 31,2 м2;
      - тамбур- 4,9 м2;
      - кімната/ склад -28,5 м2;
      - санвузол в загальному користуванні

      Опис:
      - 1-й поверх, окремий вхід з фасаду вулиці, «червона лінія»;
      - два кондиціонери, охоронна сигналізація;
      - висота стелі Н= 3,25м;
      - є огороджений внутрішній дворик та додатково металевий гараж;
      - охорона та пожежна сигналізація;
      - потужність електромережі 40кВт; 380V;
      - опалення- індивідуальні електричні конвектори/радіатори орендарів

      Вартість оренди:
      - 98,6 м2 (без кімнати/складу)- 9000 грн/міс + ком послуги
      - 127,1 м2 (з кімнатою/складом)- 10000 грн/міс + ком послуги

      БЕЗ КОМІСІЙНИХ Агенції нерухомості

      Надіслати скаргу

      Закрити
      Поскаржитися на об'єкт «ул. Артема, 26 (г. Полтава, Киевский район)»
      Ваш коментар:(Необов'язково)
      Ваша скарга буде надіслана ріелтору, що розмістив об'єкт, а також адміністрації сайту АФНУ.
      Ваше ім'я:
      (Обов'язково)
      Ваш e-mail для відповіді:
      (Обов'язково)

      Коментарі