Вхід на сайт

Ел. пошта:
Пароль:

Реєстрація на сайті

Призвіще: Область:
Ім'я: Населений пункт:
    По батькові: Номер телефону:
    Ел. пошта: Компанія:
      Пароль: Посада:
      Повторіть пароль: Рік початку роботи:
      Фото:
      З правилами розміщення об'єктів погоджуюсь

      Забули пароль?

      Вкажіть ел. пошту — ми надішлемо Вам новий пароль для входу
      Ел. пошта:

      Проблема на сайті

      Закрити
      Ваш e-mail:
      (необов'язково)
      Розкажіть нам, що сталось

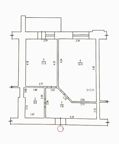
      ул. Монастырская, 11 — Продається квартира

      (г. Полтава, Октябрьский район)

      40000 $

      Загальна площа: 41.9 кв.м

      Жила площа: 16.9 кв.м

      Площа кухні: 11.6 кв.м

      Кімнат: 1

      Поверх: 4

      К-ть поверхів: 8

      Продам 1 комнатную квартиру в новом доме в р-не Центра по ул. Монастырской, 11 (дом 2019 г.с.) общей площадью 41,9 м.кв с автономным отоплением
      .
      Характеристика квартиры:
      - Общая площадь – 41,9 м.кв;
      - Жилая площадь – 16,9 м.кв;
      - Кухня - 11,6м.кв;
      - 4/8 эт. кир. дома

      Коммуникации:
      - централизованные;
      - отопление - автономное,
      - счетчики на свет, газ, воду.

      Состояние:
      - после строителей, м/п окна 5 камерный профиль, двойные стеклапакеты, установлены биметаллические радиаторы отопления, двухконтурный котёл- не установлен.

      Стоимость квартиры: $40000

      Надіслати скаргу

      Закрити
      Поскаржитися на об'єкт «ул. Монастырская, 11 (г. Полтава, Октябрьский район)»
      Ваш коментар:(Необов'язково)
      Ваша скарга буде надіслана ріелтору, що розмістив об'єкт, а також адміністрації сайту АФНУ.
      Ваше ім'я:
      (Обов'язково)
      Ваш e-mail для відповіді:
      (Обов'язково)

      Вам также могут подойти

      Боровиковського (г. Полтава, Киевский район) - Продається квартира, 35000 $ - АФНУ

      Оновлено: 20 січня

      Розміщено: 12 листопада 2024

      Продається квартира

      1 кімн., площа 43.8/22.9/10.7, поверх 10/11

      г. Полтава, Боровиковського

      35000 $

      Остапченко Александр Степанович

      соучредитель (Агентство недвижимости "Альянс риэлти" Полтава)

      Продаж 1 кімнатної квартири в новобудові на Огнівки по бульвару Боровиковського

      Характеристика квартири:
      - загальна площа 43, 8 м2;
      - житлова площа 22, 9 м2;
      - кухня 10, 7 м2;…

      Детальніше

      пер. Пушкіна, 88А (г. Полтава, Киевский район) - Продається квартира, 35000 $ - АФНУ

      Оновлено: 20 січня

      Розміщено: 21 серпня 2025

      Продається квартира

      3 кімн., площа 66.3/41/10, поверх 4/4

      г. Полтава, пер. Пушкіна, 88А

      35000 $

      Остапченко Александр Степанович

      соучредитель (Агентство недвижимости "Альянс риэлти" Полтава)

      ПРОДАЖ 3-КІМНАТНОЇ КВАРТИРИ
      Розташування:
      Центральна частина міста, район зупинки ОЦЕВУМ
      район вул. Юліана Матвійчука, 88А

      Характеристики квартири:
      -загальна площа 66,3 м2
      -житлова площа 41 м2
      -кухня 10 м2
      -четвертий поверх…

      Детальніше

      ул. Великотырновская, 29 (г. Полтава, Киевский район) - Продається квартира, 39000 $ - АФНУ

      Оновлено: 11 січня

      Розміщено: 27 листопада 2025

      Продається квартира

      2 кімн., площа 44/30/5, поверх 4/5

      г. Полтава, ул. Великотырновская, 29

      39000 $ без комісії

      Остапченко Александр Степанович

      соучредитель (Агентство недвижимости "Альянс риэлти" Полтава)

      ПРОДАЖ 2-КІМНАТНОЇ КВАРТИРИ
      м-н Половки, р-н зупинки “Бібліотека”, вул. Великотирнівська
      Характеристика об’єкта:
      • Загальна площа — 44,6 кв.м
      • Житлова площа — 30,4 кв.м
      • Кухня — 5 кв.м
      •…

      Детальніше

      Коментарі