ул. Героев Труда, 1 — Продається квартира в новобудові
(г. Харьков, Киевский район)
39900 $
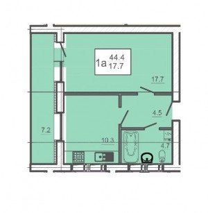
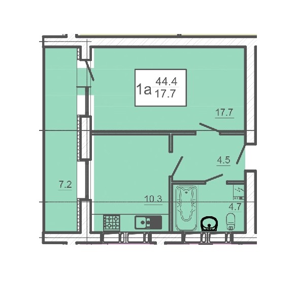
Загальна площа: 44 кв.м
Жила площа: 17 кв.м
Площа кухні: 10 кв.м
Кімнат: 1
Поверх: 16
К-ть поверхів: 16
Продаж 1-кімнатної квартири в новобудові ЖК "Оазис" по вул. Героїв Праці, 1. Неподалік пролягають маршрути трамваїв і автобусів, станція метро «Героїв праці» знаходиться в 2-ух кілометрах. У безпосередній близькості знаходиться: ТРЦ "Караван" і "Дафі" де ви зможете знайти абсолютно все від звичайних продовольчих товарів так і чим зайняти себе на вихідних, садки, школи. Не варто забувати що сам комплекс розташований з одного боку на береговій лінії, а з іншого сосновий бір. Проектом передбачено благоустрій двору, що включає роботи з озеленення, формуванню газонів, пішохідних зон; облаштування дитячих і спортивних майданчиків, місць для відпочинку. - Квартира розташована в будинку 3 - здача 4 квартал 2021 року, до ремонту можна буде приступати з весни 2022 року. Площа квартири: Загальна площа - 44 м²; Житлова площа - 17 м²; Кухня - 10 м². - СТАН КВАРТИРІ: • потрібен капітальний ремонт. КОМПЛЕКТАЦІЯ КВАРТИР: • встановлені перегородки як зазначено на плані; • металопластикові вікна (viknaland); • горизонтальна розводка опалення та радіатори опалення (є можливість поставити лічильник на тепло, регулятори на батареї і контролювати подачу тепла в квартиру, індивідуально); • вхідні залізні двері; • лічильник на електрику; • підведені комунікації (холодна, гаряча вода); • каналізація; • заведено електрику; • зроблено зовнішнє утеплення стін (утеплювач мінеральна вата 100 мм). - Буду радий Вас чути): Пн-Пт - 8: 00-20: 00. Сб-Нд - II: 00-20: 00 Святкові дні - вихідний.