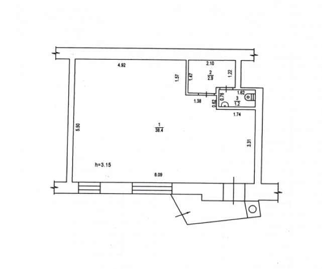
Сдам в аренду торгово- офисного помещения общей площадью 42,5 м.кв в Центре, по ул. Соборности, 25-б (в районе театра Гоголя), на 1 этаже, три окна на фасад здания
Характеристика помещения: - общая площадь – 42,5 м.кв; - зал- 38,4 м.кв; - бытовая комната – 2,9 м.кв; - санузел- 1,2 м.кв; - высота Н= 3,15 м; - перекрытие ж/б
Оренда окремої офісної будівлі з ділянкою 35 соток м. Полтава, вул. Київське Шосе, 1-Б (траса Київ–Харків) Здається в оренду окремостояча офісна будівля 100 м² + закрита ділянка 35 соток, огороджена…
Оренда окремої офісної будівлі з ділянкою 35 соток м. Полтава, вул. Київське Шосе, 1-Б (траса Київ–Харків) Здається в оренду окремостояча офісна будівля 100 м² + закрита ділянка 35 соток, огороджена…