ул. Героев Труда — Продається квартира в новобудові
(г. Харьков, Киевский район)
57500 $
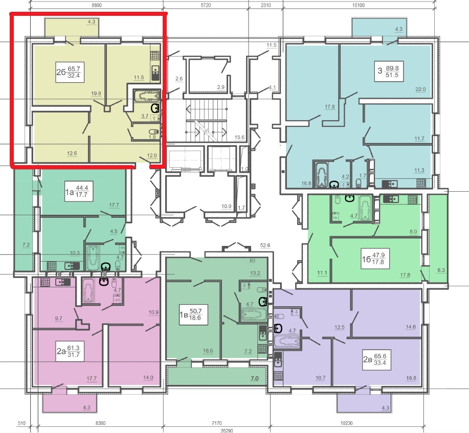
Загальна площа: 65 кв.м
Жила площа: 32 кв.м
Площа кухні: 11 кв.м
Кімнат: 2
Поверх: 7
К-ть поверхів: 16
Продається 2-кімнатна квартира в ЖК Оазис. Здача будинку в 4 кварталі 2021. Квартира знаходиться в будинку №3. Квартира повністью під ваш ремонт.. Житловий комплекс "Оазис" розташований на вул. Греоїв праці, 1, на Журавлівці в Харкові. Складається з восьми цегляних будинків (5 16 -поверхових будинків, три 25-поверхових будинка).