ул. Авиационная — Продається квартира в новобудові
(г. Харьков, Дзержинский район)
128500 $
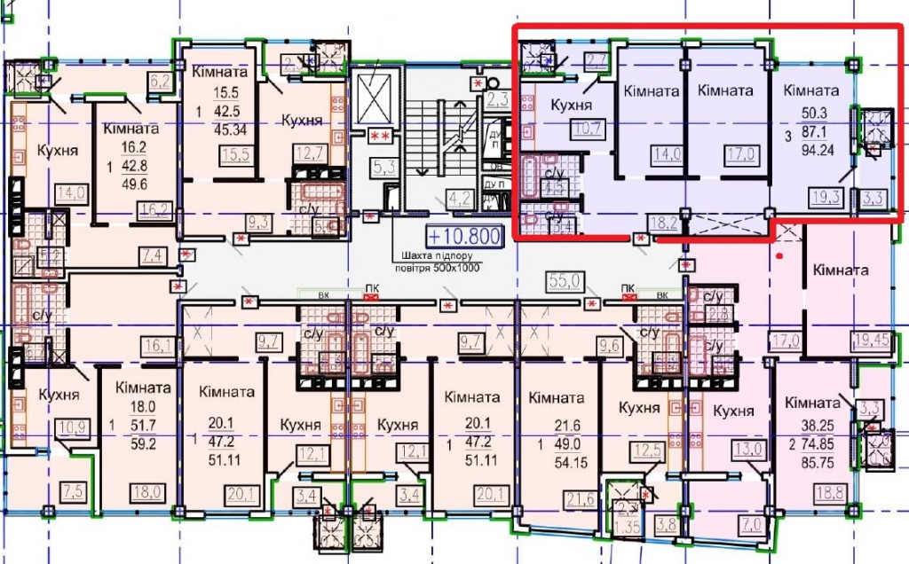
Загальна площа: 94 кв.м
Жила площа: 50 кв.м
Площа кухні: 10 кв.м
Кімнат: 3
Поверх: 4
К-ть поверхів: 9
Продається 3-кімнатна квартира в ЖК Авіаційна.
Квартира заходиться в будинку №1 секція 4.
Здача будинку № 1 запланована на кінець 2021 року.
Квартира повністью під ваш ремонт.
Житловий комплекс "Авіаційна" розташований на вул. Авіаційній на Шатиловке в Харкові.
Складається з двох багатоповерхових житлових будинків бізнес-класу. Будинок № 1 являє собою чотирьохсекційний монолітно-каркасний будинок змінної поверховості (9-13 поверхів) з підземним гаражем.
У самому комплексі планується благоустрій території, а саме: обладнані дитячі майданчики, комфортні зони відпочинку і занять спортом, місце для парковки, а також виділена паркувальна зона для гостей на прибудинковій території і підземний паркінг.