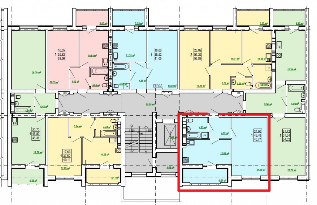
Продається 1-кімнатна квартира в ЖК Перемоги 2, пр.Перемоги 86. Квартира знаходитися в будинку №3 секция 5. Здача будинку в 4 кварталі 2020. Квартира повністю під ремонт, після будівельників. ЖК Перемоги розташований в 10-ми хвилинах ходьби від кінцевої зупинки тролейбусів (2, 40), маршрутних таксі (45е, 55Е, 119е, 221е, 305е). Також в пішохідній доступності знаходиться станція метро «Перемога». Недалеко від ділянки розташовано кілька великих супермаркетів, таких як «Метро», «Рост», «Клас» і «Сільпо», будівельний гіпермаркет «Епіцентр», ТРК «Караван», продовольчий ринок, магазини і кафе, тренажерні зали та салони краси.