без комісії
ул. Клочковская, 98а — Продається квартира в новобудові
(г. Харьков, Дзержинский район)
2291900 грн.
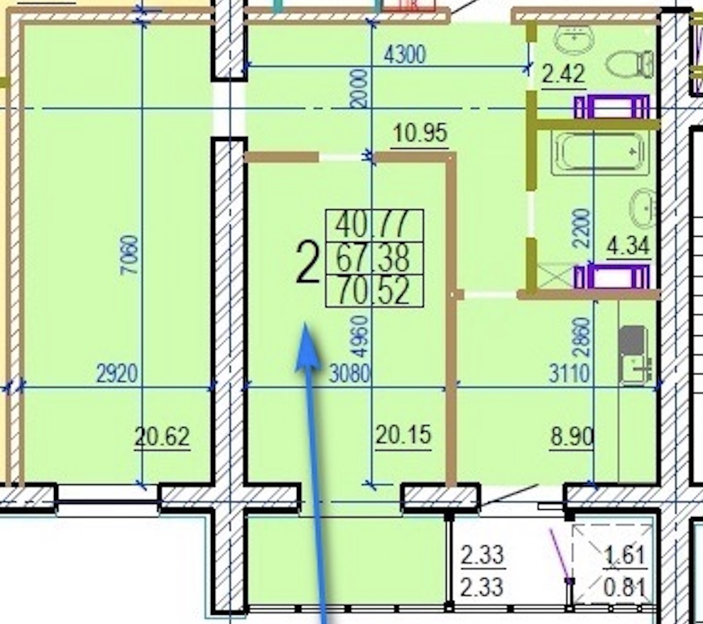
Загальна площа: 70.52 кв.м
Жила площа: 41 кв.м
Площа кухні: 9 кв.м
Кімнат: 2
Поверх: 11
К-ть поверхів: 19
Без оплати агентських послуг за ціною забудовника продається 2-кімнатна квартира в новобудові ЖК «Овіс», розташований по вул. Клочківська, 98А, майже в самому центрі Харкова. В Вашому розпорядженні всі блага центра міста: майдан Свободи, сад ім. Шевченка, зоопарк, дельфінарій, ресторани та бутики, все це знаходиться в діапазоні 1-1.5 км гуляючи містом. Біля самого ЖК розташовані: супермаркет Восторг, малі продовольчі магазини та розважальні заходи. Транспорт: маршрутні таксі, трамваї, метро Наукова та Держпром находятся в радіусі 1.5 км . На території самого комплексу запланований підземний паркінг, благоустрій, комерційні приміщення в яких також розташовуватися розважальні заклади або сфери послуг. - Квартира розташована в будинку № 2 - здача будинку в 4 кварталі 2022 року. Площа квартири: Загальна. - 70.52 м²; Житлова - 41 м²; Кухня - 9 м². - КВАРТИРА ПОТРЕБУЄ КАПІТАЛЬНИЙ РЕМОНТ. КОМПЛЕКТАЦІЯ КВАРТИР: • встановлені перегородки як зазначено на плані; • металопластикові вікна; • горизонтальна розводка опалення та радіатори опалення (є можливість поставити лічильник на тепло, регулятори на батареї і контролювати подачу тепла в квартиру індивідуально); • вхідні залізні двері; • лічильник на електрику; • підведені комунікації (холодна, гаряча вода); • каналізація; • заведено електрику; • зроблено зовнішнє утеплення стін (утеплювач мінеральна вата 100 мм). - Буду радий Вас чути): Пн-Пт - 8: 00-20: 00. Сб-Нд - II: 00-20: 00 Святкові дні - вихідний.