ул. Шекспира, 13 — Продається квартира в новобудові
(г. Харьков, Дзержинский район)
86000 $
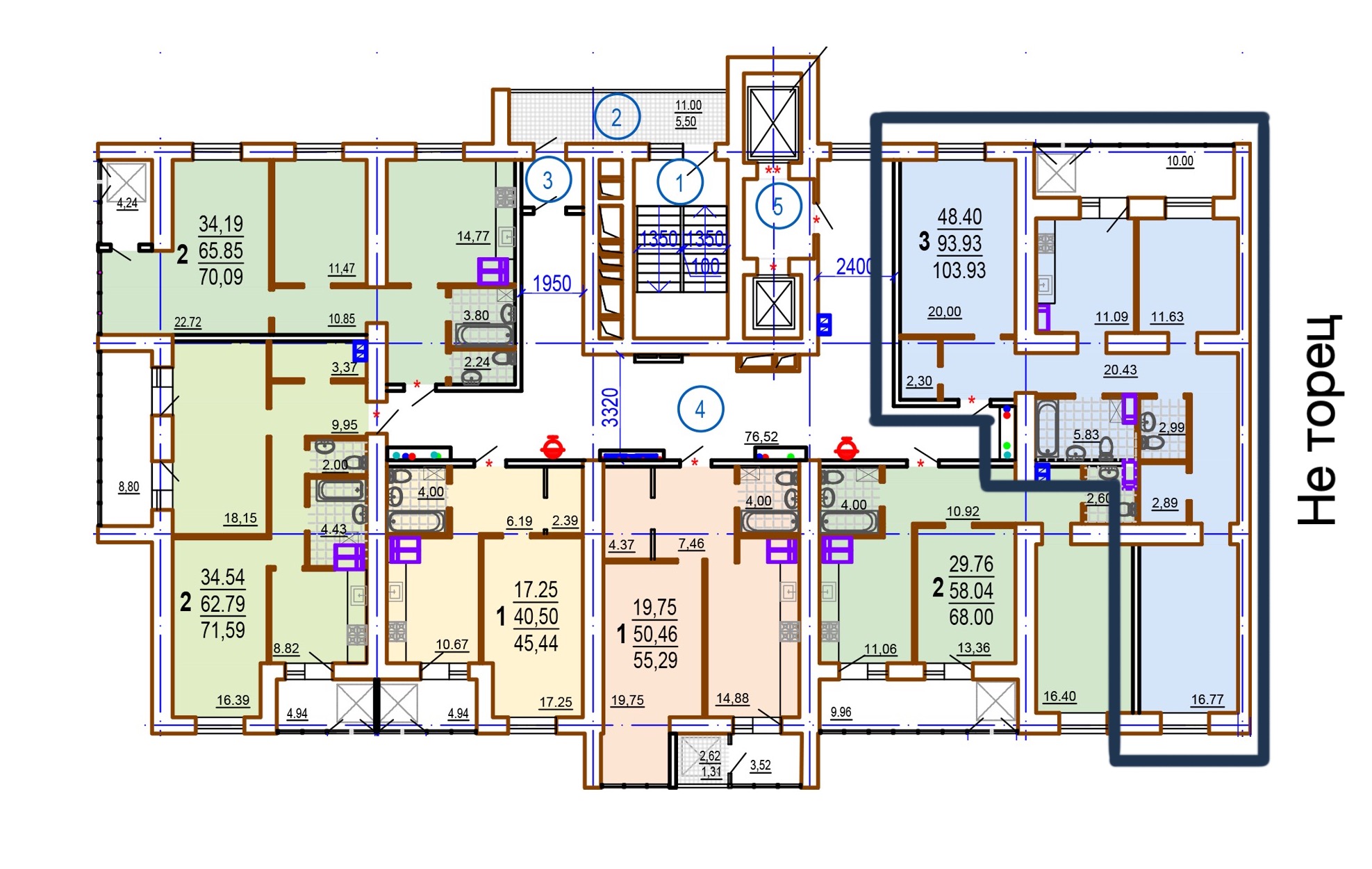
Загальна площа: 104 кв.м
Жила площа: 48 кв.м
Площа кухні: 11 кв.м
Кімнат: 3
Поверх: 8
К-ть поверхів: 16
Продається 3-кімнатна квартира в ЖК "Шекспіра". Розташований комплекс по пров. Шекспіра, 13. До метро "23 серпня" і супермаркету "Клас" 800 м. Ходьби. Дитячий сад, школи розташовані на відстані 300 м. від комплексу. На території будуть обладнані дитячі майданчики, майданчики для занять спортом, комфортні зони відпочинку, місце для парковки. - Квартира розташована в будинку 1 - здача будинку в 4 кварталі 2021 року. Площа квартири: Загальна площа - 104 м²; Житлова площа - 48 м²; Кухня - 11 м². - Стан квартири: потрібен капітальний ремонт. Комплектація квартири: • встановлені перегородки як зазначено на плані; • металопластикові вікна; • горизонтальна розводка опалення та радіатори опалення (є можливість поставити лічильник на тепло, регулятори на батареї і контролювати подачу тепла в квартиру, індивідуально); • вхідні залізні двері; • лічильник на електрику; • підведені комунікації (холодна, гаряча вода); • каналізація; • заведено електрику; • зроблено зовнішнє утеплення стін (утеплювач мінеральна вата 100 мм). - Буду радий Вас чути): Пн-Пт - 8: 00-20: 00. Сб-Нд - II: 00-20: 00 Святкові дні - вихідний.