Вхід на сайт

Ел. пошта:
Пароль:

Реєстрація на сайті

Призвіще: Область:
Ім'я: Населений пункт:
    По батькові: Номер телефону:
    Ел. пошта: Компанія:
      Пароль: Посада:
      Повторіть пароль: Рік початку роботи:
      Фото:
      З правилами розміщення об'єктів погоджуюсь

      Забули пароль?

      Вкажіть ел. пошту — ми надішлемо Вам новий пароль для входу
      Ел. пошта:

      Проблема на сайті

      Закрити
      Ваш e-mail:
      (необов'язково)
      Розкажіть нам, що сталось

      Партизанский пер. — Продається квартира в новобудові

      (г. Харьков)

      108900 $

      Загальна площа: 80 кв.м

      Площа кухні: 27 кв.м

      Кімнат: 2

      Поверх: 2

      К-ть поверхів: 5

      Предложение от застройщика ЖК ROYAL RESIDENCE
      Жилой комплекс ROYAL RESIDENCE — место, где хочется жить.

      Без комиссии для покупателя!

      ООО ПКФ Крона работает только с проверенными партнерами и застройщиками, с теми, кому можем доверить своих клиентов – инвесторов и покупателей недвижимости.

      Видовые просторные Двух/Трехкомнатные квартиры, с полным панорамным остеклением, прекрасным видом.

      2-комн. 80 м.кв., 86 м.кв. (1250 $/м.кв.) есть предложение на разных этажах, а так-же 1,3, и двухуровневых квартир.

      Дом премиум-класса сочетает в себе стиль, комфорт, экологичность, безопасность и уют.

      Свободные планировки квартир
      Отопление итальянская энергоэффективная современная регулируемая система Rhoss — «тепловой насос воздух-вода», используется для обогрева, охлаждения и подачи горячей воды

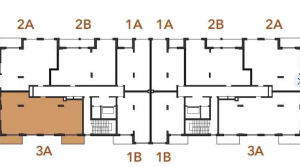
      Дом премиум-класса состоит из двухсекционного 5-этажного здания на 51 квартиру, для автомобилей предусмотрен подземный паркинг на 45 парковочных мест и небольшая гостевая стоянка на территории.

      Фундамент — монолитная плита, монолитно-каркасная технология строительства. Наружные и внутренние стены — красный керамический блок, толщина блока 250мм. Утепление дома — минеральная вата, толщиной 100мм.
      Межквартирная шумоизоляция.
      Толщина межквартирных стен — 290мм

      Улучшенная шумоизоляция между квартирами обеспечивается тем, что каждая перегородка выполнена в 2 ряда керамоблока, толщиной 120мм с прослойкой между стенами из минеральной ваты толщиной 50мм.

      Окна 5-ти камерный профиль VEKA SoftLine 70мм и 2-х камерный энергосберегающий стеклопакет 40мм с аргоном в обеих камерах и напыление Solar Silver.

      Подземный тёплый паркинг на 45 машиномест с двумя лифтами.

      Придомовая территория с обустроенными зонами отдыха, барбекю и детской площадкой, дизайнерский фасад с применением натуральных материалов, двор без машин, просторное лобби с релакс зонами, спортивный зал с панорамным видом для жильцов.

      В пяти минутах расположены супермаркеты, салоны красоты, спортивные залы, кафе, рестораны и метро. Для отличного проведения времени с семьей недалеко от жилого комплекса расположены два крупнейших ТРЦ в Харькове. В пешей доступности от ЖК располагается Журавлёвский гидропарк с оборудованными пляжами и территорией.
      7 минут пешком станция метро «Студенческая»

      Сдача дома, декабрь 2021 года. Весна/лето 2022 года можно приступать к ремонтам!

      ООО ПКФ Крона проведет Ваш проект под ключ, от показа квартиры, проверки разрешительных документов на застройку, до сопровождения Вас на сделке и получения Вами правоустанавливающих документов!

      Надіслати скаргу

      Закрити
      Поскаржитися на об'єкт «Партизанский пер. (г. Харьков)»
      Ваш коментар:(Необов'язково)
      Ваша скарга буде надіслана ріелтору, що розмістив об'єкт, а також адміністрації сайту АФНУ.
      Ваше ім'я:
      (Обов'язково)
      Ваш e-mail для відповіді:
      (Обов'язково)

      Коментарі