Вхід на сайт

Ел. пошта:
Пароль:

Реєстрація на сайті

Призвіще: Область:
Ім'я: Населений пункт:
    По батькові: Номер телефону:
    Ел. пошта: Компанія:
      Пароль: Посада:
      Повторіть пароль: Рік початку роботи:
      Фото:
      З правилами розміщення об'єктів погоджуюсь

      Забули пароль?

      Вкажіть ел. пошту — ми надішлемо Вам новий пароль для входу
      Ел. пошта:

      Проблема на сайті

      Закрити
      Ваш e-mail:
      (необов'язково)
      Розкажіть нам, що сталось

      ул. Лисового — Продається торгівельний майданчик

      (г. Кривой Рог, Долгинцевский район)

      24900 $

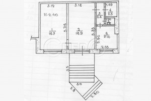
      Загальна площа: 46 кв.м

      Поверх: 1

      К-ть поверхів: 9

      Пропонуємо продаж магазину вільного призначення, в густонаселеному спальному районі Східний-2, по вул. Лісового.

      Про об'єкт:
      - заг. пл. - 46,4 кв.м
      - приміщення фасадне, в гарному стані,
      - має два зали, підсобне приміщення, сан.вузол.
      - навпроти приміщення парковка.

      В оренді, зі стабільним прибутком.
      Можливо розглянути як під інвестицію так і під свій бізнес.

      Локація:
      Постійний автомобільний і пішохідний трафік, зупинки громадського транспорту.
      Поруч безліч комерційної нерухомості.

      Продаж 24 900$

      За будь-якими питаннями за цією або схожими пропозиціями звертайтесь за номером телефону 067 696 16 51.

      З повагою, команда Credo!

      Надіслати скаргу

      Закрити
      Поскаржитися на об'єкт «ул. Лисового (г. Кривой Рог, Долгинцевский район)»
      Ваш коментар:(Необов'язково)
      Ваша скарга буде надіслана ріелтору, що розмістив об'єкт, а також адміністрації сайту АФНУ.
      Ваше ім'я:
      (Обов'язково)
      Ваш e-mail для відповіді:
      (Обов'язково)

      Вам также могут подойти

      ул. Лебедева-Кумача (г. Кривой Рог, Центрально-Городской район) - Продається торгівельний майданчик, 28000 $ - АФНУ

      Оновлено: 5 січня

      Розміщено: 25 лютого 2019

      Продається торгівельний майданчик

      площа 53, поверх 1/1

      г. Кривой Рог, ул. Лебедева-Кумача

      28000 $

      Літвинова Ірина Вікторівна

      Пропонуємо продаж нежитлової, окремо розташованої будівлі, вільного призначення в Центрально-міському р-ні, вул. Лебедєва-Кумача (Цетр. Міський ринок)

      Про об'єкт:
      - загальна площа - 53,4 кв.м
      - земельна ділянка - 15 соток…

      Детальніше

      ул. Косиора (г. Кривой Рог, Дзержинский район) - Продається торгівельний майданчик, 25000 $ - АФНУ

      Оновлено: 6 січня

      Розміщено: 22 листопада 2021

      Продається торгівельний майданчик

      площа 30, поверх 1/5

      г. Кривой Рог, ул. Косиора

      25000 $

      Літвинова Ірина Вікторівна

      Продаж магазину на "Соцмісті"
      - Металургійний район
      - вул. Соборності

      Розташування:
      -район " Соцмісто"
      -розташоване по "червоній лінії"
      -зупинка " Плавальний басейн"

      Техничні характиристики:
      - вбудований в 1 поверх 5-ти…

      Детальніше

      ул. Софьи Перовской (г. Кривой Рог, Саксаганский район) - Продається торгівельний майданчик, 22500 $ - АФНУ

      Оновлено: 24 грудня 2025

      Розміщено: 30 травня 2023

      Продається торгівельний майданчик

      площа 44, поверх 1/4

      г. Кривой Рог, ул. Софьи Перовской

      22500 $

      Літвинова Ірина Вікторівна

      Продаж приміщення біля зупинки "пл. В.Великого"
      вул. С.Перовської.

      Про об'єкт:
      - Загальна площа - 44кв.м.
      - Торг.пл.30.2кв.м.

      Комунікації:
      - Центральний водопровід.
      - Електрика.
      - Центральна каналізація.
      - Асфальтована дорога.

      Локація:…

      Детальніше

      Коментарі