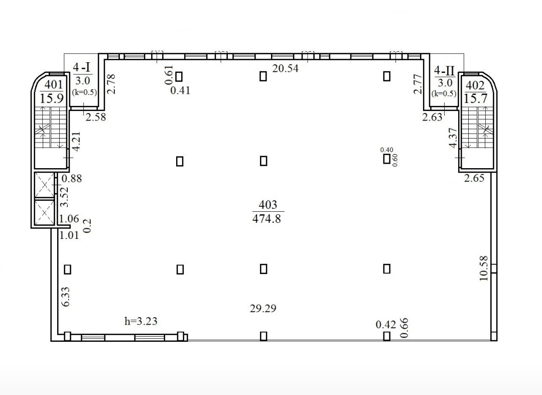
Хотите для своей компании самую лучшую локацию в городе? Добро пожаловать в Ваш НОВЫЙ офис! Открытое Open space пространство даёт возможность в создании своего интерьера. Панорамные окна, которые выходят по обе стороны здания, задают особую атмосферу рабочего дня. Все коммуникации, 2 лифта и 2 лестничных входа на этаж, автономно располагают офис от других компаний-соседей. Небольшие балконы, где можно передохнуть от активных переговоров. Несмотря на погоду за окном, Вы всегда сможете спуститься лифтом в подземный паркинг (сухой и чистый) и пересесть в свой автомобиль. Ваш офис останется под надёжной, круглосуточной охраной.