без комісії
пр. Соборности, 22 б — Продається квартира
(г. Луцк)
25000 грн. за кв.м.
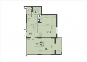
Загальна площа: 69.9 кв.м
Жила площа: 30 кв.м
Площа кухні: 22 кв.м
Кімнат: 1
Поверх: 5
К-ть поверхів: 12
Житловий комплекс 'Візаві' створений для тих, хто обирає комфорт і простір! Купуючи квартиру ви отримуєте не лише житлові метри, але й розкішну інфраструктуру. Ідеальне житло для сімей з дітками. В пішій доступності найпрестижніші дошкільні і шкільні заклади. Великий сквер. Територія навколо будинків облаштована зонами відпочинку для дітей та дорослих, спортивним майданчиком та паркінгом. Великий вибір торгових центрів та супермаркетів. Також поблизу житлового комплексу знаходиться зупинка громадського транспорту. Зручна транспортна розв'язка. Для себе та своєї родини ви зможете обрати неймовірно простору квартиру-мрію з багатофункціональним плануванням. Кожна квартира обладнана автономною системою опалення та гарячого водопостачання: двоконтурний котел Protherm, сталеві панельні радіатори, труби водопостачання та сантехнічні труби Romstal. Встановлені лічильники на газ, холодну воду та електроенергію. Проведена мідна система електропостачання. Шестикамерні вікна, двокамерні склопакети з енергозберігаючим покриттям, засклені лоджії та комбінована термоізоляція фасаду збережуть тепло твоєї оселі. Гарантувати безпеку твоєї квартири будуть сертифіковані протипожежні вхідні двері з двома якісними замками. На будь-який із 12 поверхів новобудови тебе доправить швидкісний ліфт Izamet. Каркасно-монолітна конструкція будинку забезпечує міцність і стійкість, високу надійність. Тому на сьогодні ця технологія є однією з найпопулярніших у світі. Ціна - 25 000 грн/кв.м. Можливе розтермінування платежу. Загальна площа квартири 69.9 кв.м. Висота стелі - 2,75 м. Будинок на етапі завершення. Продаж від забудовника. Обери свою квартиру - МРІЮ!