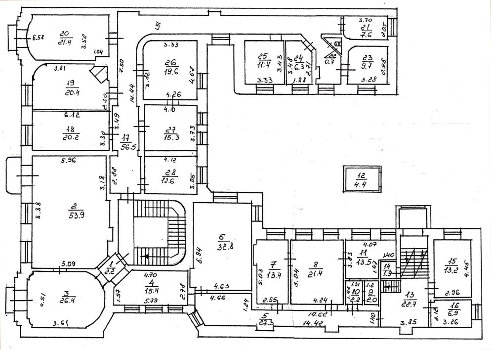
Помещение под отель или апартаменты, 1000м ул. Троицкая угол Пушкинской
Предлагается к продаже двухуровневое помещение в историческом здании по ул. Троицкая. Объект недвижимости расположен на третьем и мансардном полноценном этажах жилого дома. Общая площадь составляет1000кв.м. Окна выходят во двор и на фасад. Красивая реставрированная парадная с мраморной лестницей. Статус помещения – жилое. Есть проект на миниотель на 22 номера или отдельные квартиры, и смета окончательного ремонта. На данный момент объект находится в стадии реконструкции.
Возможно использовать объект продажи под: -квартиру в двух уровнях (или 2 квартиры) -пентхаус, -гостиницу на 21 номер; -хостел.
Продавец готов сопровождать объект на всех стадиях: проектная документация, строительные работы, ввод в эксплуатацию и оформление права собственности