ул. Софьи Перовской — Продається торгівельний майданчик
(г. Кривой Рог, Саксаганский район)
14800 $
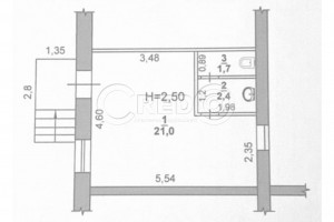
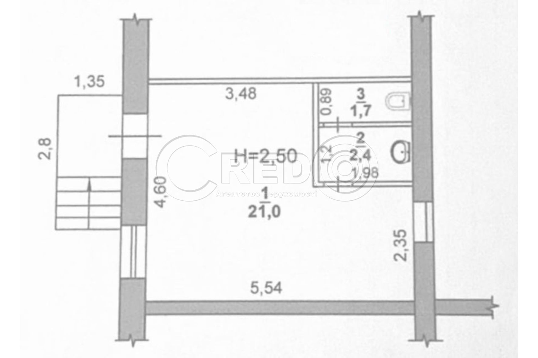
Загальна площа: 25 кв.м
Поверх: 1
К-ть поверхів: 5
Продається приміщення в районі зупинки «Площі В. Великого», вулиця Софії Перовської.
Про об'єкт: - Загальна площа - 25,1 кв.м.
Особливості: - Зроблений новий євроремонт 2022р. - Поміняна каналізація, проводка, бойлер (50л), вікно та двері м/пл.
Комунікації: - Електроенергія 10кВт - Опалення центральне (лічильник). - Вода та каналізація.
Локація: Розташоване на "другій лінії", за будівлею колишнього Рудоуправління. Густонаселений район, поряд великий офісний центр, добре проглядається з боку вулиць Тесленка та Бикова, у дворі невеликий ринок, прод.магазин, д/садок.
Ціна 14800$
За будь-якими питаннями за цією або схожими пропозиціями звертайтесь за номером телефону, де вам відповість наш ріелтор 097 541 73 31.