Вхід на сайт

Ел. пошта:
Пароль:

Реєстрація на сайті

Призвіще: Область:
Ім'я: Населений пункт:
    По батькові: Номер телефону:
    Ел. пошта: Компанія:
      Пароль: Посада:
      Повторіть пароль: Рік початку роботи:
      Фото:
      З правилами розміщення об'єктів погоджуюсь

      Забули пароль?

      Вкажіть ел. пошту — ми надішлемо Вам новий пароль для входу
      Ел. пошта:

      Проблема на сайті

      Закрити
      Ваш e-mail:
      (необов'язково)
      Розкажіть нам, що сталось

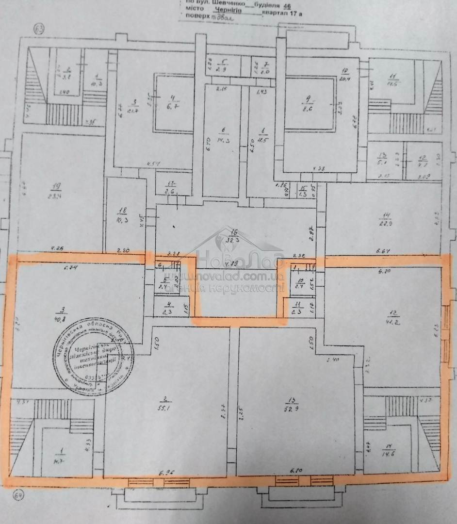
      пер. Шевченко, 46 — Продається торгівельний майданчик

      (г. Чернигов, Деснянский район)

      410000 $

      Загальна площа: 1000 кв.м

      Поверх: 1

      К-ть поверхів: 14

      Помещение свободного назначения в центре Чернигова общей площадью 1000 м2, в районе Горсада ул.Шевченко 46, удачно
      расположено, с оптимальным планировочным решением, под магазин, банк,офисы, фитнес, ресторан и любую идею Вашего
      бизнеса!
      ОБРАТИТЕ ВНИМАНИЕ:
      1. Помещение общей площадью 1000м2, расположено в кирпичном доме в центре Чернигова, удобный подъезд на транспорте; имеется парковка, хороший трафик людей.
      2. Коммерческая недвижимость находится в капитальном кирпичном здании 2008 года постройки и включает в себя :подвальное помещение 200м2, первый этаж 400м2, второй этаж 400м2 с панорамным видом на Городской парк культуры и отдыха.
      3. Все помещения с ремонтом, установлены современные окна.
      4. В помещении имеются современные системы вентиляции, заведены все коммуникации.
      5. Высота потолков 2.70м.
      6. Подготовлена вся необходимая юридическая документация (это касается как права собственности, так и правил эксплуатации помещения).
      Звоните! С радостью презентую объект и предоставлю всю необходимую информацию.

      Надіслати скаргу

      Закрити
      Поскаржитися на об'єкт «пер. Шевченко, 46 (г. Чернигов, Деснянский район)»
      Ваш коментар:(Необов'язково)
      Ваша скарга буде надіслана ріелтору, що розмістив об'єкт, а також адміністрації сайту АФНУ.
      Ваше ім'я:
      (Обов'язково)
      Ваш e-mail для відповіді:
      (Обов'язково)

      Коментарі