Вхід на сайт

Ел. пошта:
Пароль:

Реєстрація на сайті

Призвіще: Область:
Ім'я: Населений пункт:
    По батькові: Номер телефону:
    Ел. пошта: Компанія:
      Пароль: Посада:
      Повторіть пароль: Рік початку роботи:
      Фото:
      З правилами розміщення об'єктів погоджуюсь

      Забули пароль?

      Вкажіть ел. пошту — ми надішлемо Вам новий пароль для входу
      Ел. пошта:

      Проблема на сайті

      Закрити
      Ваш e-mail:
      (необов'язково)
      Розкажіть нам, що сталось

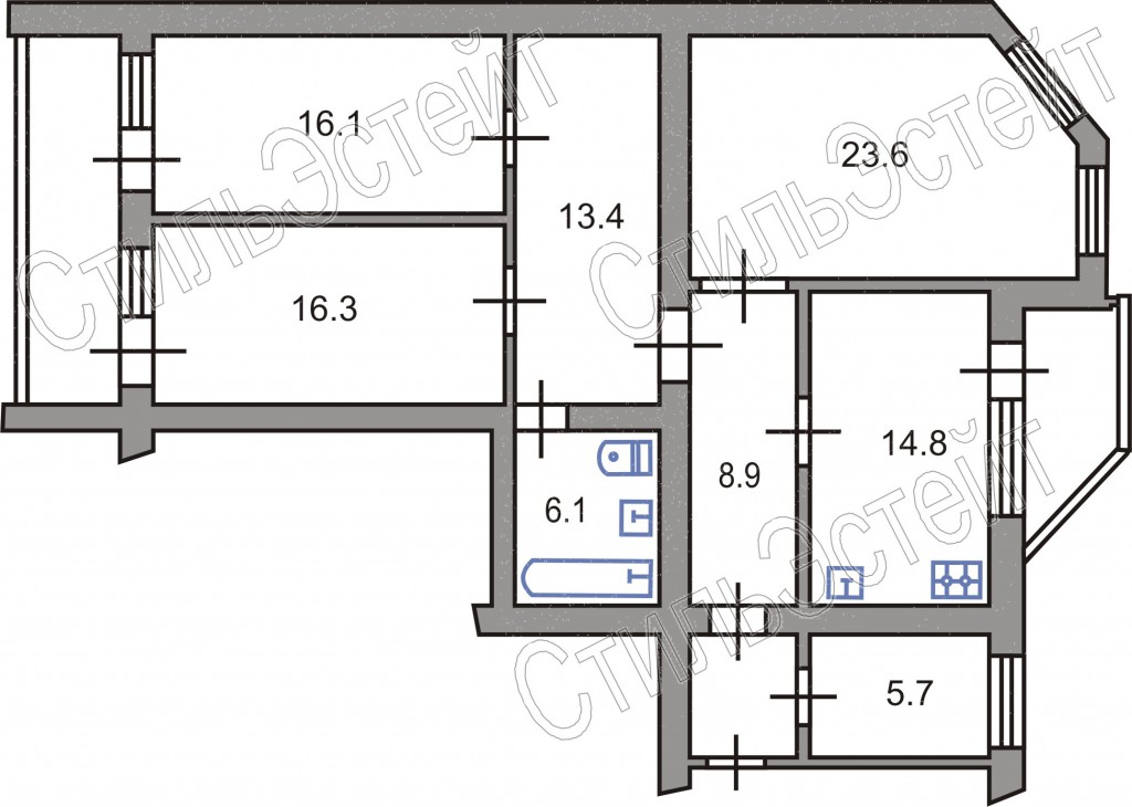
      ул. Аграрная — Продається квартира

      (г. Винница, Старогородской район)

      42000 $

      Загальна площа: 115 кв.м

      Жила площа: 66 кв.м

      Площа кухні: 15 кв.м

      Кімнат: 3

      Поверх: 4

      К-ть поверхів: 5

      генеральский дом, жилое состояние, автономное отопление, балкон застеклен - с кухни, лоджия застеклена - 8 метров - на 2 спальни, кладовка 5,7 кв. м. с окном (как комната), побелка, покраска, 1 сотка, подвал, закрытый двор, в т.ч. гараж во дворе.

      Надіслати скаргу

      Закрити
      Поскаржитися на об'єкт «ул. Аграрная (г. Винница, Старогородской район)»
      Ваш коментар:(Необов'язково)
      Ваша скарга буде надіслана ріелтору, що розмістив об'єкт, а також адміністрації сайту АФНУ.
      Ваше ім'я:
      (Обов'язково)
      Ваш e-mail для відповіді:
      (Обов'язково)

      Коментарі