Вхід на сайт

Ел. пошта:
Пароль:

Реєстрація на сайті

Призвіще: Область:
Ім'я: Населений пункт:
    По батькові: Номер телефону:
    Ел. пошта: Компанія:
      Пароль: Посада:
      Повторіть пароль: Рік початку роботи:
      Фото:
      З правилами розміщення об'єктів погоджуюсь

      Забули пароль?

      Вкажіть ел. пошту — ми надішлемо Вам новий пароль для входу
      Ел. пошта:

      Проблема на сайті

      Закрити
      Ваш e-mail:
      (необов'язково)
      Розкажіть нам, що сталось

      пер. Чкалова, 51/1 — Продається будинок

      (г. Мелитополь)

      105000 $

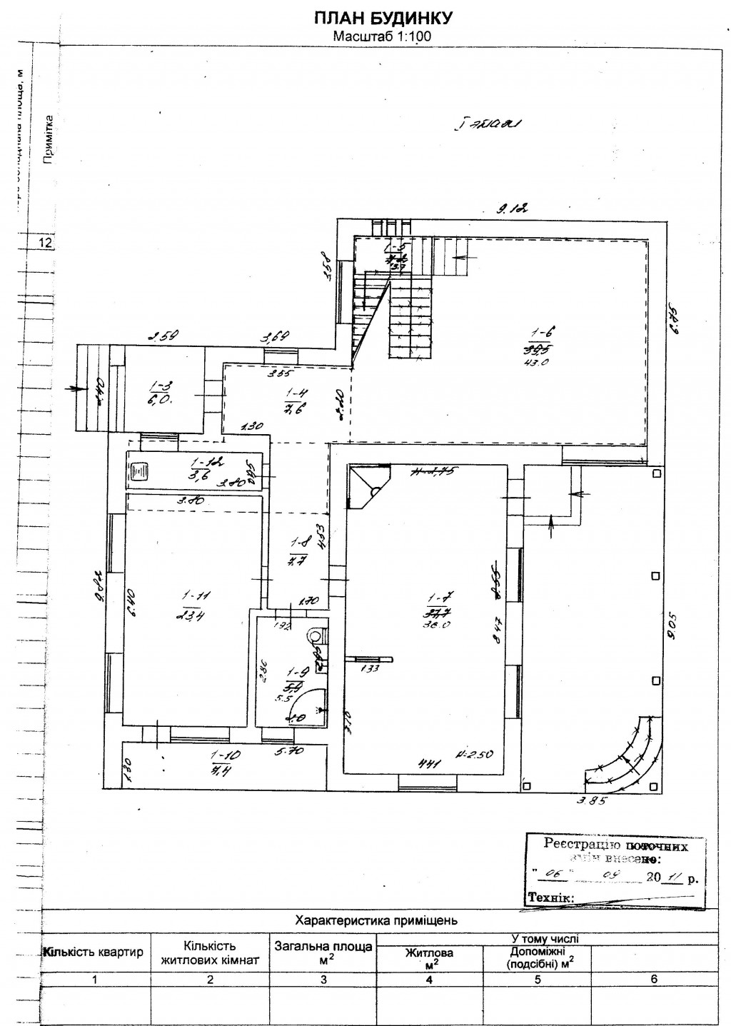
      Загальна площа: 299 кв.м

      Площа ділянки: 15 сот

      Кімнат: 4

      К-ть поверхів: 2

      Продам дом Вашей мечты.
      Элитный 2х этажный дом в северной части г. Мелитополя. Особый проект. Дизайнерский ремонт из экологически чистых материалов. Расположен на прямоугольном приватизированном участке в 15 сот. Есть зеленые декоративные насаждения.

      Дом общей площадью 299 кв м.
      1й этаж площадью 127 кв. м:
      - холл 43 кв. м;
      - кабинет 23 кв. м с балконом;
      - кухня – столовая 36 кв м с камином и террасой 35 кв. м;
      - котельная 4 кв. м;
      - сан узел 6 кв. м

      2й этаж площадью 100 кв. м:
      - спальня 38 кв. м;
      - спальня с балконом 27 кв. м;
      - бытовая комната 5 кв. м;
      - сан. узел 7 кв. м

      Подвальное помещение площадью 62 кв. м
      Все коммуникации. Газовый котел.
      Стоимость дома 105 000 $

      Надіслати скаргу

      Закрити
      Поскаржитися на об'єкт «пер. Чкалова, 51/1 (г. Мелитополь)»
      Ваш коментар:(Необов'язково)
      Ваша скарга буде надіслана ріелтору, що розмістив об'єкт, а також адміністрації сайту АФНУ.
      Ваше ім'я:
      (Обов'язково)
      Ваш e-mail для відповіді:
      (Обов'язково)

      Коментарі