Вхід на сайт

Ел. пошта:
Пароль:

Реєстрація на сайті

Призвіще: Область:
Ім'я: Населений пункт:
    По батькові: Номер телефону:
    Ел. пошта: Компанія:
      Пароль: Посада:
      Повторіть пароль: Рік початку роботи:
      Фото:
      З правилами розміщення об'єктів погоджуюсь

      Забули пароль?

      Вкажіть ел. пошту — ми надішлемо Вам новий пароль для входу
      Ел. пошта:

      Проблема на сайті

      Закрити
      Ваш e-mail:
      (необов'язково)
      Розкажіть нам, що сталось

      без комісії Грушевського, 51 — Продається офіс

      (г. Хмельницкий, Центр)

      125000 $

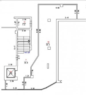
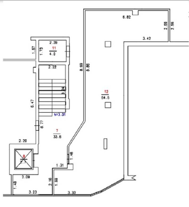
      Загальна площа: 64.5 кв.м

      Кімнат: 1

      Поверх: 2

      К-ть поверхів: 4

      Продам просторе та світле приміщення в центрі по вул.Грушевського 51, БЦ"Грушевський".
      Поверх: 2/4
      Площа: 64,5 м.кв.
      Вартість: 125000$ + витрати по переоформленню

      Вигідна локація - самісінький центр міста, працює ліфт.
      Бізнес центр новий та сучасний, повністю працюючий. Цілодобовий доступ. Світло 24/7. Панорамне фасадне вікно на всю ширину.
      Опалення - кондиціонер. Є також централізоване. В приміщенні є виводи на воду/каналізацію.
      Пропозиція від представника власника.
      Ключі на руках. Показ по домовленості.

      Надіслати скаргу

      Закрити
      Поскаржитися на об'єкт «Грушевського, 51 (г. Хмельницкий, Центр)»
      Ваш коментар:(Необов'язково)
      Ваша скарга буде надіслана ріелтору, що розмістив об'єкт, а також адміністрації сайту АФНУ.
      Ваше ім'я:
      (Обов'язково)
      Ваш e-mail для відповіді:
      (Обов'язково)

      Вам также могут подойти

      Грушевського, 57 (г. Хмельницкий) - Продається офіс, 135000 $ - АФНУ

      Оновлено: 3 березня

      Розміщено: 8 серпня 2025

      Продається офіс

      2 кімн., площа 96.6, поверх 1/2

      г. Хмельницкий, Грушевського, 57

      135000 $ без комісії

      Осташевський Олексій Іванович

      Спеціаліст з нерухомості (ЦН "Золотий ключ")

      Продам комерційне приміщення. Центр. Грушевського 57.
      Площа: 96,6 кв.м.
      Вартість: 135000$ + витрати по переоформленню.

      Самісінький центр. Асфальтована дорога, свій паркінг в центрі, зручне місцерозташування.
      Вся інфраструктура під рукою –…

      Детальніше

      Грушевського, 57 (г. Хмельницкий) - Продається офіс, 135000 $ - АФНУ

      Оновлено: 3 березня

      Розміщено: 8 серпня 2025

      Продається офіс

      2 кімн., площа 96.6, поверх 1/2

      г. Хмельницкий, Грушевського, 57

      135000 $ без комісії

      Осташевський Олексій Іванович

      Спеціаліст з нерухомості (ЦН "Золотий ключ")

      Продам комерційне приміщення. Центр. Грушевського 57.
      Площа: 96,6 кв.м.
      Вартість: 135000$ + витрати по переоформленню.

      Самісінький центр. Асфальтована дорога, свій паркінг в центрі, зручне місцерозташування.
      Вся інфраструктура під рукою –…

      Детальніше

      Грукшевського, 51 (г. Хмельницкий, Центр) - Продається офіс, 125000 $ - АФНУ

      Оновлено: 25 лютого

      Розміщено: 25 лютого

      Продається офіс

      2 кімн., площа 64.5, поверх 2/4

      г. Хмельницкий, Грукшевського, 51

      125000 $ без комісії

      Бурдельний Микола Станіславович

      Спеціаліст з нерухомості (ЦН "Золотий ключ")

      Продаж комерційного приміщення 64.5 м.кв. БЦ "Грушевський" Центр вул. Грушевського 51. Приміщення на 2 поверсі в 4-х поверховий будівлі, Фасадна, світле і просторе, утеплення з зовні. Вигідна локація-самісінький центр міста,…

      Детальніше

      Коментарі