без комісії
Січових Стрільців, 28 — Продається будинок
(г. Борисполь)
65000 $
Загальна площа: 53.1 кв.м
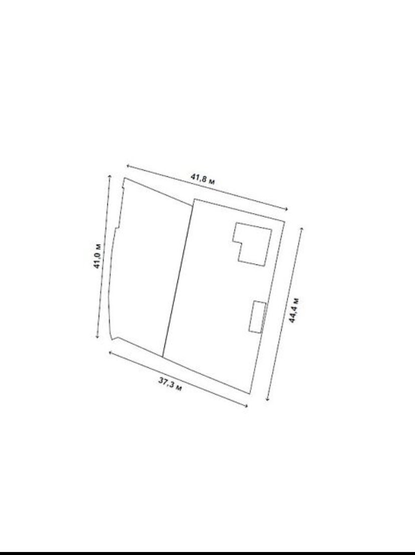
Площа ділянки: 16.6 сот
Кімнат: 2
К-ть поверхів: 1
Без комісії! Пропонується на продаж будинок в місті Бориспіль на Січових Стрільців (Фрунзе), 28. Стан будинку жилий/під ремонт. Площа 53,1 м2. Має дві кімнати, кухню, коридор, вбиральню, веранду. Зручності у будинку: є водичка, бойлер, душова кабіна, туалет. Опалення газове, функціонує. Будинок побудований з дерева, обкладений цеглою, утеплений пінопластом і поштукатурений. Вікна склопакети. Будинок розташований на земельній ділянці площею 16,6 соток, з них 10 соток (має забудови: будинок і споруди)і 6,6 соток (без забудов). Кадастрові номери: 3210500000:09:034:0007 та 3210500000:09:034:0013. Цільове призначення 02.01: для будівництва і обслуговування житлового будинку, господарських будівель і споруд. Земельна ділянка має прекрасну геометрію: по фасаду 42 м, вглибину 44м. Правильної форми. Рівненька: майже немає перепадів по висоті. На ділянку заведені комунікаціі: світло (є лічильник), газ (є лічильник), є свердловина (глибина близько 30,0м) і септик (10 кубів). По периметру огороджена парканом і сіткою. Також є сарай із шлакоблоку, погріб. Сусіди побудовані, живуть круглий рік. Відмінна транспортна розв'язка. До зупинки громадського транспорту менше 100м. Декілька магазинів до 10 хвилин пішки. До центру міста 1,5 км. Дорога асфальтовна, рух в двох напрямках.