Вхід на сайт

Ел. пошта:
Пароль:

Реєстрація на сайті

Призвіще: Область:
Ім'я: Населений пункт:
    По батькові: Номер телефону:
    Ел. пошта: Компанія:
      Пароль: Посада:
      Повторіть пароль: Рік початку роботи:
      Фото:
      З правилами розміщення об'єктів погоджуюсь

      Забули пароль?

      Вкажіть ел. пошту — ми надішлемо Вам новий пароль для входу
      Ел. пошта:

      Проблема на сайті

      Закрити
      Ваш e-mail:
      (необов'язково)
      Розкажіть нам, що сталось

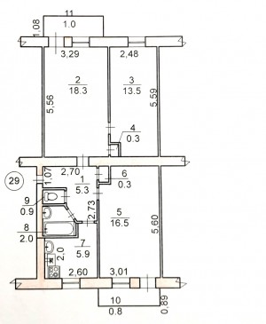
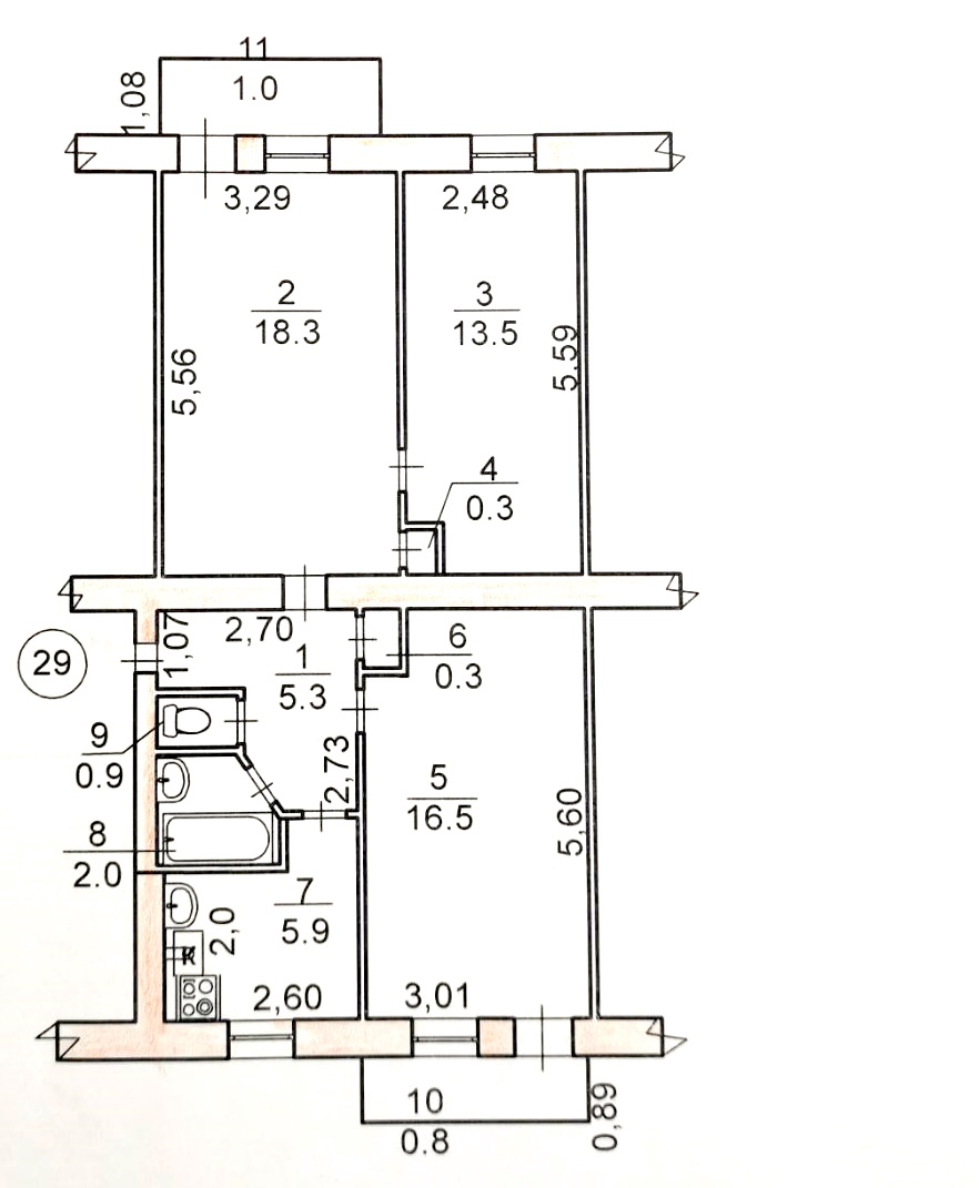
      пер. Южный — Продається квартира

      (г. Николаев, Ленинский район)

      24999 $

      Загальна площа: 62 кв.м

      Жила площа: 40 кв.м

      Площа кухні: 6 кв.м

      Кімнат: 3

      Поверх: 4

      К-ть поверхів: 5

      Продам 3 кімнатну квартиру в Інгульському районі,провулок Південний, будинок розташований на перехресті з вул Садовського (Чайковського) в парковій зоні,дуже гарна локація для сімей з дітками,є куди вийти прогулятись,подихати чистим повітрям,в кінці парку розташована 19 гімназія,переходити дорогу не потрібно,дитина спокійно дійде до школи за 3 хвилини
      Квартира має 3 кімнати,з 2 кімнат виходять балкони,всі кімнати великі,світлі
      Санвузол в квартирі роздільний,зручна кухня з вбудованими меблями,газова колонка,що дуже зручно,гарача вода завжди

      Надіслати скаргу

      Закрити
      Поскаржитися на об'єкт «пер. Южный (г. Николаев, Ленинский район)»
      Ваш коментар:(Необов'язково)
      Ваша скарга буде надіслана ріелтору, що розмістив об'єкт, а також адміністрації сайту АФНУ.
      Ваше ім'я:
      (Обов'язково)
      Ваш e-mail для відповіді:
      (Обов'язково)

      Вам также могут подойти

      пр. Мира (г. Николаев, Ленинский район) - Продається квартира, 28000 $ - АФНУ

      Оновлено: 15 вересня

      Розміщено: 30 липня

      Продається квартира

      2 кімн., площа 46/28/6, поверх 3/9

      г. Николаев, пр. Мира

      28000 $

      Бабаджанова Олена Олександрівна

      Риэлтор (Юрінформ АН)

      ПРОДАМ 2 кімнатну квартиру проспекті Миру, недалеко від ринку на Площі Перемоги, (ринок знаходиться через проспект).
      квартира знаходиться в 9 поверховому будинку на 3 поверсі та має
      1. Газова плита,…

      Детальніше

      ул. Дунаева (г. Николаев, Заводской район) - Продається квартира, 20000 $ - АФНУ

      Оновлено: сьогодні

      Розміщено: 2 листопада 2023

      Продається квартира

      1 кімн., площа 26/16/6, поверх 2/2

      г. Николаев, ул. Дунаева

      20000 $

      Бабаджанова Олена Олександрівна

      Риэлтор (Юрінформ АН)

      ПРОДАЖ затишної 1 кімнатної квартири в самому зручному для життя районі
      В кроковий досяжності Центральний ринок з однієї сторони та вулиця Соборна з іншої сторони.
      Квартира тепла та світла,в будинку…

      Детальніше

      ул. Колодезная (г. Николаев, Центральный район) - Продається квартира, 23000 $ - АФНУ

      Оновлено: сьогодні

      Розміщено: 27 березня 2024

      Продається квартира

      1 кімн., площа 35/17/7, поверх 3/9

      г. Николаев, ул. Колодезная

      23000 $

      Бабаджанова Олена Олександрівна

      Риэлтор (Юрінформ АН)

      ПРОДАЄТЬСЯ 1 кімнатна квартира в спокійному,найкращому для життя районі,де взагалі дуже складно купити житло.
      Квартира знаходиться на вул Колодязна,ріг вулиці 5 Слобідська,від проспекту Центрального 100 метрів,від АТБ 150 метрів,від зупинок…

      Детальніше

      Коментарі